小度生活
首页
美食营养
手工爱好
生活家居
返回
小度生活
首页
美食营养
游戏数码
手工爱好
生活家居
健康养生
运动户外
职场理财
情感交际
母婴教育
时尚美容
知识问答
生活知识
生活百科
搜索
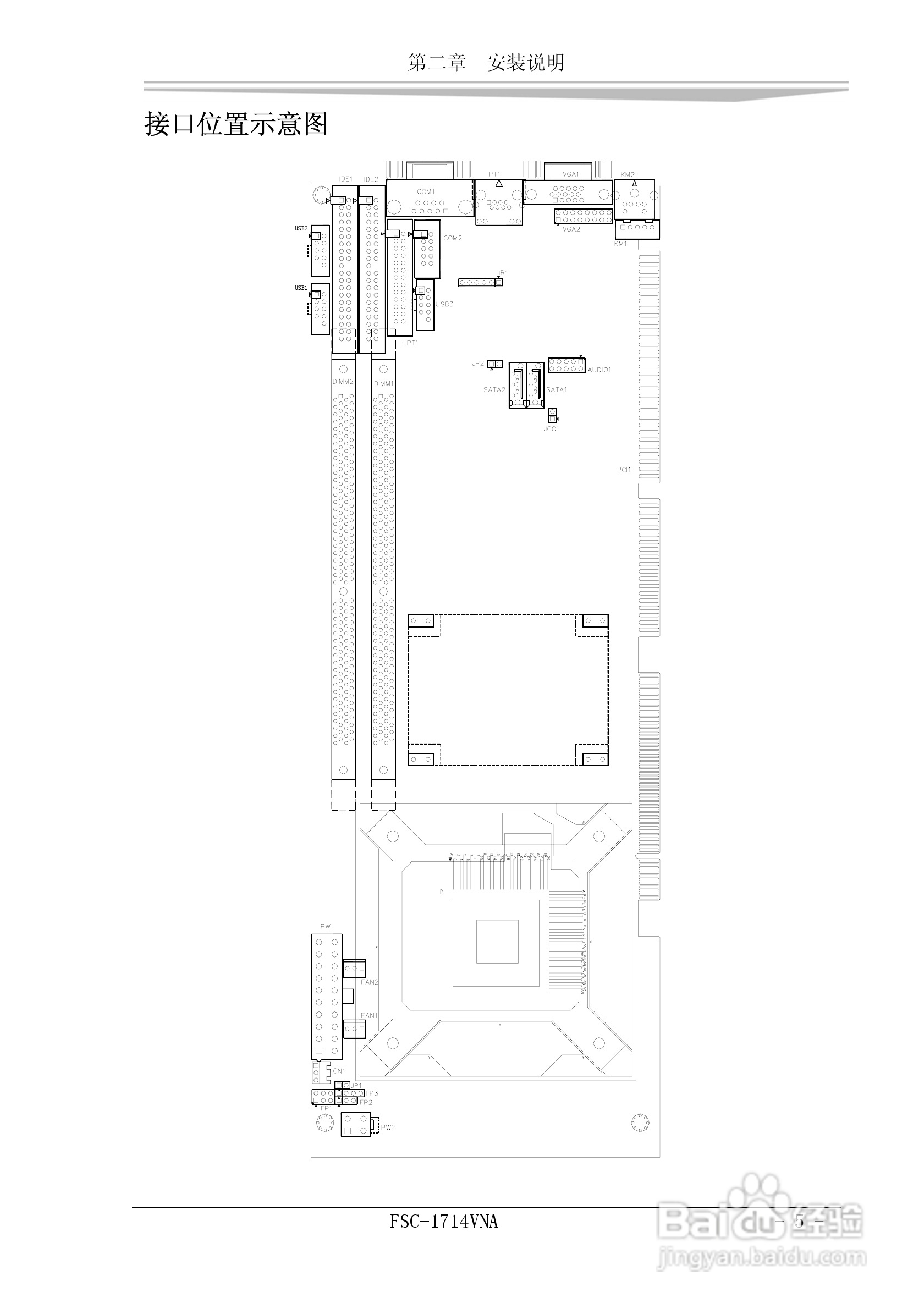
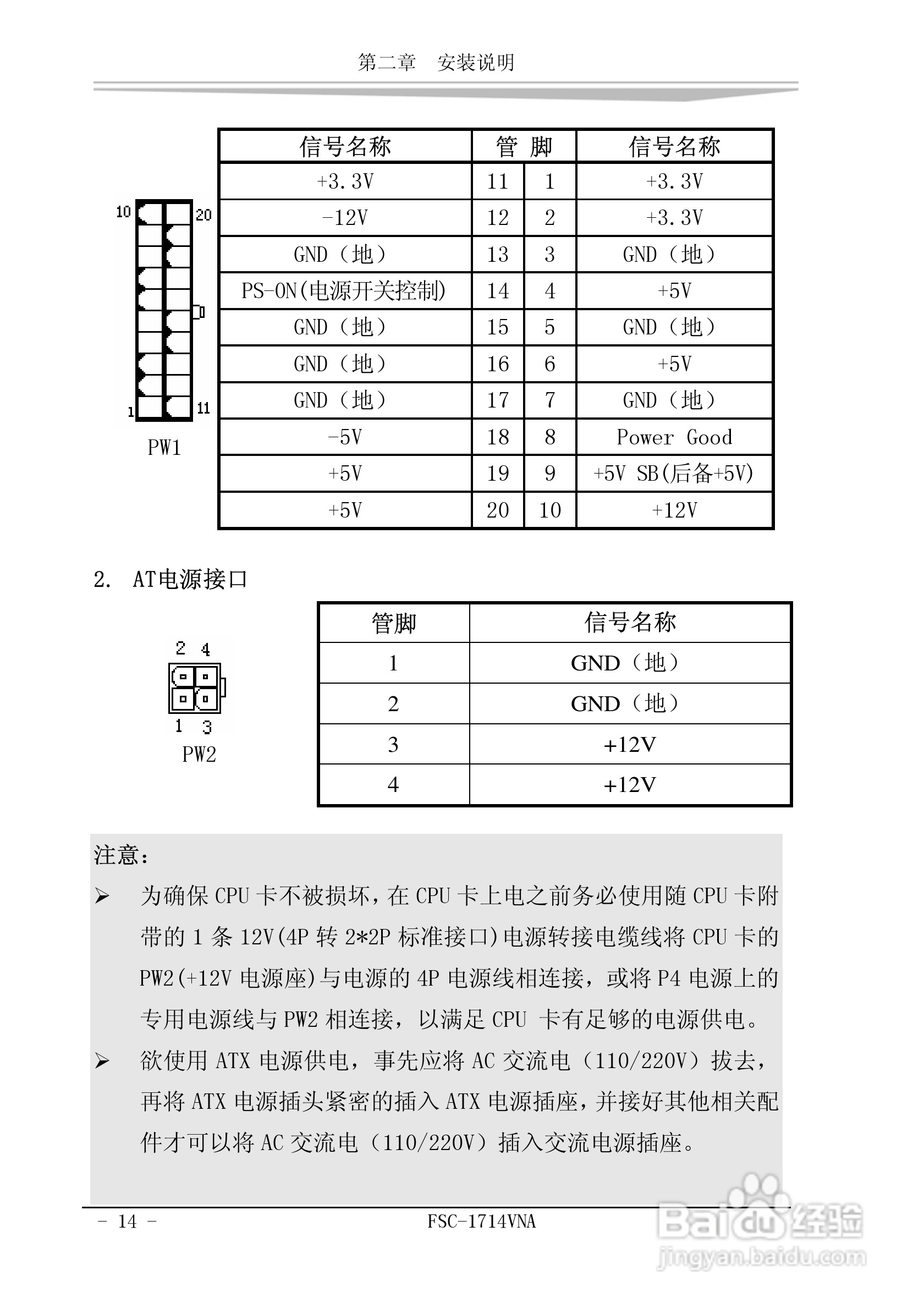
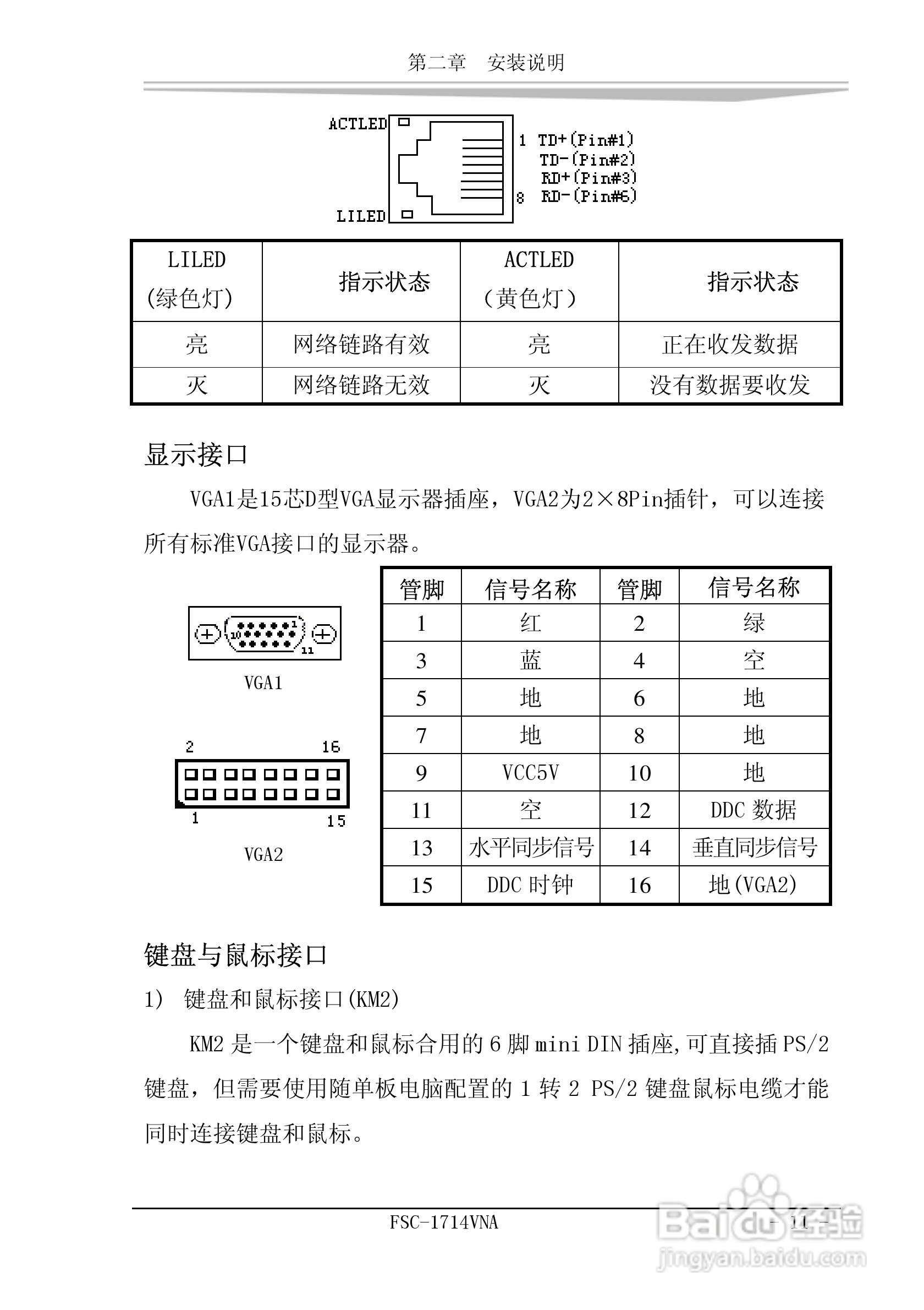
研祥FSC-1714VNA工业级CPU板卡说明书:[2]
2026-04-23 10:33:42
本篇为《研祥FSC-1714VNA工业级CPU板卡说明书》,主要介绍该产品的使用方法以及常见故障解决方案。
(共篇)
上一篇:
|
下一篇:
声明:
本网站引用、摘录或转载内容仅供网站访问者交流或参考,不代表本站立场,如存在版权或非法内容,请联系站长删除,联系邮箱:site.kefu@qq.com。
相关推荐
研祥FSC-1714VNA工业级CPU板卡说明书:[1]
阅读量:101
研祥FSCFSC-1713VNA(B)工业级CPU板卡说明书:[2]
阅读量:21
研祥FSCFSC-1713VNA(B)工业级CPU板卡说明书:[1]
阅读量:90
研祥EC5-1714CLDNA-A0工业级CPU板卡说明书:[3]
阅读量:124
研祥EC5-1714CLDNA-A0工业级CPU板卡说明书:[4]
阅读量:89
猜你喜欢
我收获了什么作文
什么水果去火
什么烟最贵
珍贵的反义词是什么
属鸡和什么属相最配
服务密码是什么
什么是质数什么是合数
梦见蛆是什么意思
什么是智齿
丹桂飘香是什么季节
猜你喜欢
什么的声音
今年流行什么发型女
梅毒的症状是什么样
京ag6车牌什么意思
三月三是什么节日
鼻祖是什么意思
k是什么单位
股票xd是什么意思
moncler是什么牌子
杭州有什么特产