数控车自学系列之G71(指令详解)
1、G71复合型内外圆车削循环: 指令格式如图片
有两行代码:
第一行例子: G71 U2 R1 f0.15;
其中G71是代码指令,后面U2是半径值,说明你车削时进刀半径为两个毫米,R为退刀数值,是和U1 W1 f0.15等效,这是G71最好用的地方.后面F0.15是车削速度,每转进给15丝.

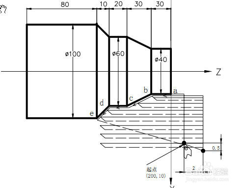
2、第二行例子:G71 P1 Q2 U0.5 w0.5, S500;
是说明详细的代码过程在N1 和N2之间,X 和Z的余量都是0.5,其中X假设直径是80,那么车完后是80.50,转速是500转.

3、上图是操作说明书中的例子,我用的机床由于没有行号,所以不能用这样的格式,而是在N080 G00 X40.0;变成N1 G00 X40,这是起步标志,
再把N120 X100.0 W-10.0 变成成N2 X100.0 W-10.0;
这样就完成了过程,所以大大简化了编程的行数.而且在有些地方你不能单步编程,你必须用G71,不然的话够你头痛的了.
在N1 和N2之间,是和图纸完全相同尺寸的切削步骤,所以的车刀一定要对好刀不能过切,即使你有余量,到时也说不定废了工件.
1、操作说明书的例子, 第一点要必须注意 :在G71前面的定位点,为了提高效率,避免第一刀走空,所以一吃刀允许的情况下,不要起的太高,比如工作80,你的起点刀在G00 X80 Z2就行,不能象说明书中的:G00 X100 Z10,这样的话虽然没什么,但浪费了很多时间.

2、第二点要注意: G71规定N1和N2之间的第一行必须是X值,比如上面的例子,第一行必须是G00 X40.0;这是格式不能错了,当然你也能用G01.
3、第三点:G71只能车这样的内孔,就递进型的内孔外圆,里面(后面) 越来越高而不能越来越小,特别是有内凹的弧,是千万不能用G71的.


4、第四:车内孔时,第二行的U,如果不精车的话,为0,如果留余量的话一定是-U0.5这样的格式,不然的话会撞刀.