CAD怎么设计一套橱柜(第十七课)
1、找到我们上节课学习保存的文件

2、打开我们学习完保存的CAD文件

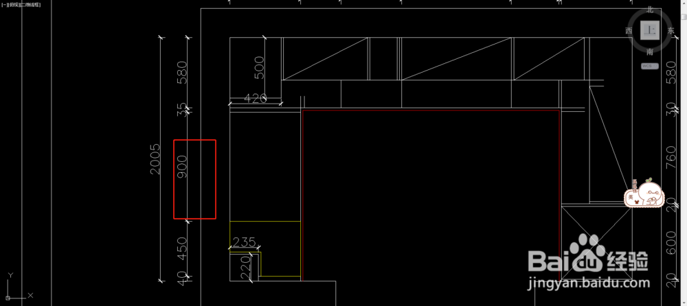
3、我们来看一下第三个柜子的尺寸为900

4、输入偏移快捷键O 距离为900mm 进行偏移

5、偏移后我们得到的结果如图所示

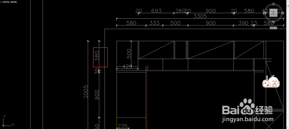
6、接着我们再看转角封板的尺寸 尺寸是35mm

7、我们输入偏移快捷键O 距离为35mm 进行偏移

8、偏移后我们得到这样的方案结果

9、最后我们来看一下最后一个尺寸 尺寸是580

10、我们输入DLI 测量一下是580 这样我们水槽柜这边就设计好了

声明:本网站引用、摘录或转载内容仅供网站访问者交流或参考,不代表本站立场,如存在版权或非法内容,请联系站长删除,联系邮箱:site.kefu@qq.com。
阅读量:140
阅读量:138
阅读量:189
阅读量:24
阅读量:151