小度生活
首页
美食营养
手工爱好
生活家居
返回
小度生活
首页
美食营养
游戏数码
手工爱好
生活家居
健康养生
运动户外
职场理财
情感交际
母婴教育
时尚美容
知识问答
生活知识
搜索
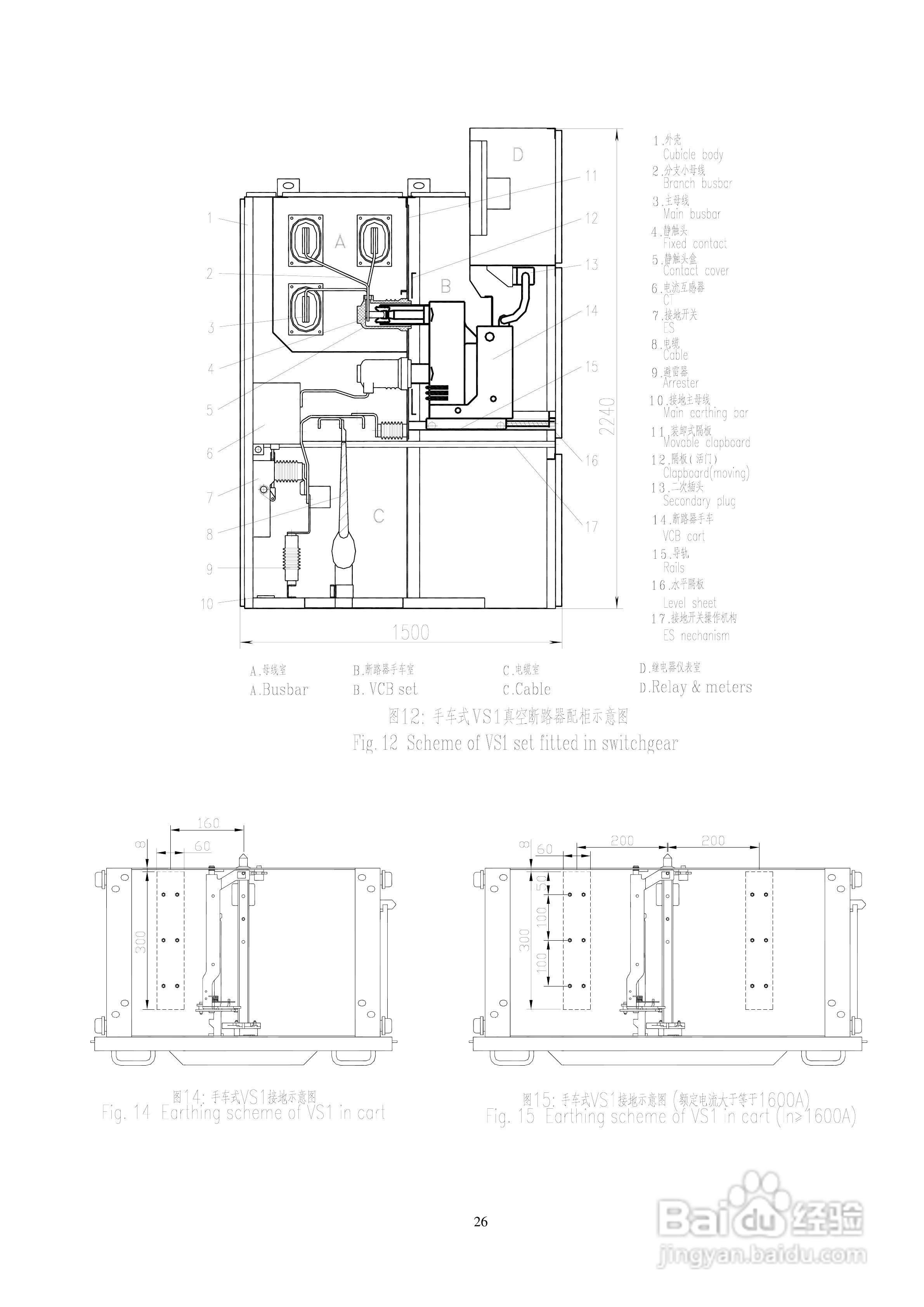
森源电气VS1型户内高压真空断路器安装使用说明书:[3]
2025-10-21 02:11:54
本篇为《森源电气VS1型户内高压真空断路器安装使用说明书》,主要介绍该产品的使用方法以及常见故障解决方案。
(共篇)
上一篇:
声明:
本网站引用、摘录或转载内容仅供网站访问者交流或参考,不代表本站立场,如存在版权或非法内容,请联系站长删除,联系邮箱:site.kefu@qq.com。
相关推荐
细石混凝土泵常规型号以及细石泵液压系统调节
阅读量:124
【ROO教程】蘑菇M2一键ROOT
阅读量:75
如何在途虎的帮助中心里查看机滤安装的问题
阅读量:70
新能源电瓶—影响电动车电池寿命的惊人真相
阅读量:45
自己动手更换汽车机油。
阅读量:143
猜你喜欢
height是什么意思
电瓶车什么牌子好
峥嵘是什么意思
撸啊撸是什么意思
羊水穿刺什么时候做
困难的近义词是什么
维生素k
乌龟什么时候冬眠
梦见发大水是什么意思
ehs是什么意思
猜你喜欢
长寿花养殖
灰色裤子搭配什么颜色上衣
鸵鸟养殖
bath是什么意思
查水表是什么意思
年化收益率是什么意思
include是什么意思
pcs什么意思
icu病房是什么意思
激烈的反义词是什么