小度生活
首页
美食营养
手工爱好
生活家居
返回
小度生活
首页
美食营养
游戏数码
手工爱好
生活家居
健康养生
运动户外
职场理财
情感交际
母婴教育
时尚美容
知识问答
生活知识
搜索
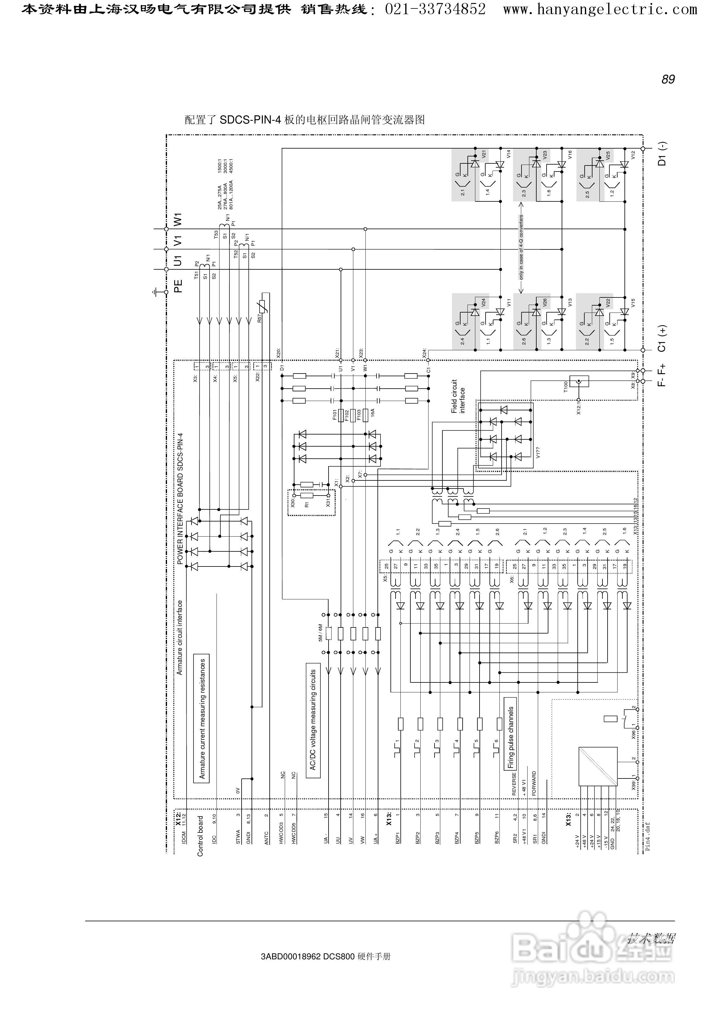
ABB DCS800直流驱动器中文手册:[9]
2026-03-01 05:42:03
本篇为《ABB DCS800直流驱动器中文手册》,主要介绍该产品的使用方法以及常见故障解决方案。
(共篇)
上一篇:
|
下一篇:
声明:
本网站引用、摘录或转载内容仅供网站访问者交流或参考,不代表本站立场,如存在版权或非法内容,请联系站长删除,联系邮箱:site.kefu@qq.com。
相关推荐
ABB DCS800直流驱动器中文手册:[8]
阅读量:172
ABB DCS800直流驱动器中文手册:[10]
阅读量:100
ABB DCS800直流驱动器中文手册:[13]
阅读量:143
DCS800ABB变流器说明书:[1]
阅读量:137
驱动器d中的磁盘没有格式化怎么办
阅读量:43
猜你喜欢
高考如何报志愿
微信传视频过大怎么办
笔记本怎么关闭触控板
如何取消页码
3d八卦图怎么看
如何给文件加密
肥牛是什么肉做的
崇明生活网招聘
小米4s怎么样
生活感悟经典句子
猜你喜欢
如何安装wifi
我的世界冰箱怎么用
嘉兴到乌镇怎么坐车
今日生活
itunes是什么意思
小白兔的生活习性
喜来健理疗床怎么样
芸芸的舒心生活
悠闲生活美滋滋
北京生活频道直播