地暖冷气机主机安装注意事项
1、在安装时,请确保留出足够的维修空间及进出风通畅,方便维修
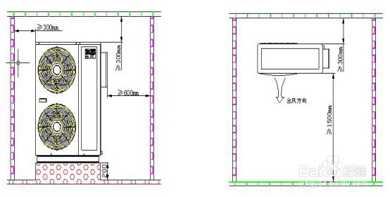
a.机组出风口严禁被遮挡,前方1.5m 以内不得有障碍物(上出风型出风口2m以内不得有障碍物,包括管道)。
b.蒸发器迎风面300mm 以内不得有杂物等阻碍进风通畅。
c.若机组上方有障碍物时,请离机组上方2000mm 以上。
d.若机组周围有堆放物,则其高度要在距机组顶部300mm 以上。在安装时,请确保留下足够的维修和保证机组正常工作的空间(如图4-1,图4-2)
侧出风机型:KFXRS-9I/LLG(28 机单相) KFXRS-9II/LLG(28 机三相)
KFXRS-16I/LLG(50 机单相) KFXRS-16II/LLG(50 机三相) KFXRS-18II/LLG(60 机侧出风)

2、侧出风机组安装图
顶出风机型:KFXRS-19II/LLG(60 机三相) KFXRS-34II/LLG(125 机三相)
KFXRS-102II/LLG(380 机三相)


3、安装位置
a. 安装处尽量保证机器不会被埋在雪中。
b.安装处必须能顺畅排出雨水和除霜形成的水(地漏)。
c.安装在对业主及邻居噪音影响较小并便于安装及维修保养的位置。
d.室外机排出的空气不会回流(即防止气流短路)并且在机器周围留出足够的维修空间。
e.室外机组安装应远离含有油源(包括机油)、盐(海洋地区)、硫化物气体(温泉、炼油厂附近)的大气环境,这些物质容易引起机组故障。
1、多台机组安装规则
a. 在合适的空间内,机组应安装在基础稳固的地方。
b. 如安装在基础振动的设施上,避免机组共震应加减震器,减震器选型
c. 机组安装应垂直、水平、倾斜度不得大于5℃。
d. 当两台或多台室外机组安装在一起,必须确保它们同一朝向,避免其中一台
机组吸入另一台机组排出的空气。(见图)
e. 用地脚螺丝固定即可。
2、单排侧出风机组布局原则

3、顶出风机组多台布局与单台机组四周及上下的布局一致即可