小度生活
首页
美食营养
手工爱好
生活家居
返回
小度生活
首页
美食营养
游戏数码
手工爱好
生活家居
健康养生
运动户外
职场理财
情感交际
母婴教育
时尚美容
知识问答
生活知识
生活百科
搜索
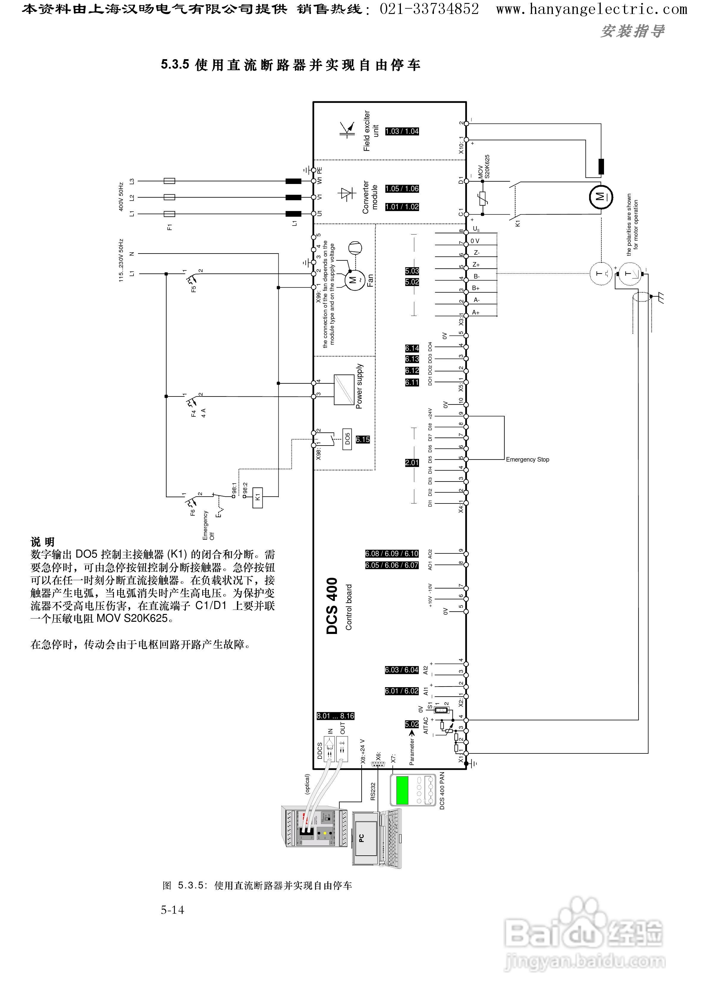
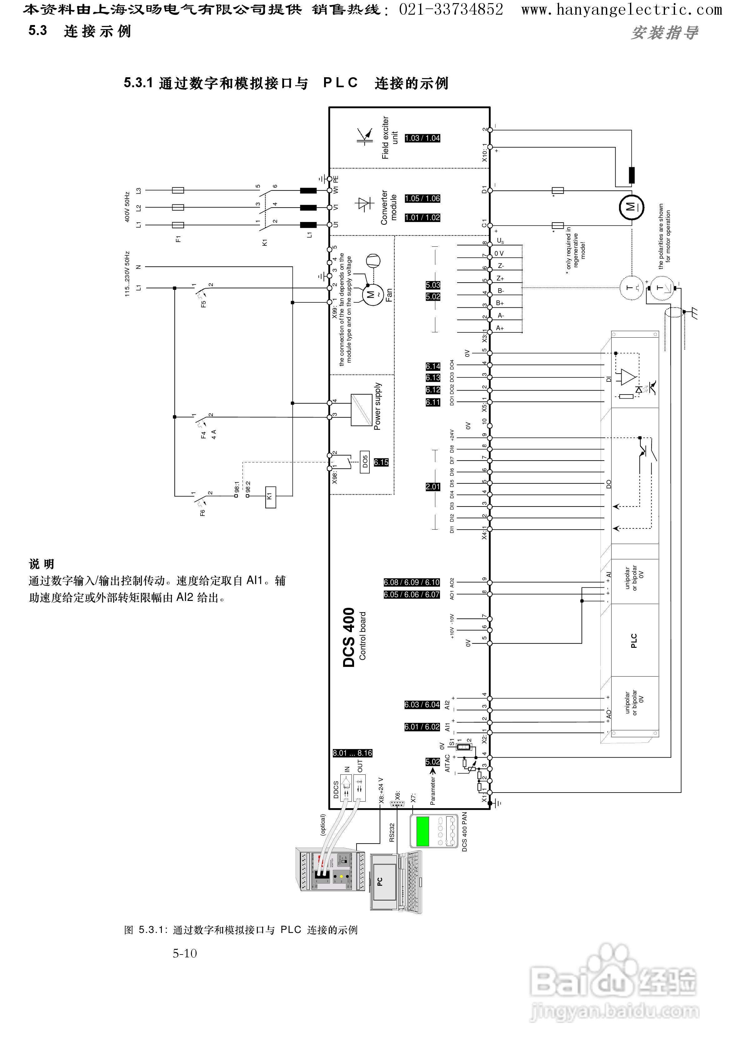
ABB DCS400直流调速器中文使用手册:[11]
2026-05-23 03:13:30
本篇为《ABB DCS400直流调速器中文使用手册》,主要介绍该产品的使用方法以及常见故障解决方案。
(共篇)
上一篇:
|
下一篇:
声明:
本网站引用、摘录或转载内容仅供网站访问者交流或参考,不代表本站立场,如存在版权或非法内容,请联系站长删除,联系邮箱:site.kefu@qq.com。
相关推荐
压力机轴承位修复工艺
阅读量:137
什么是LED幻彩灯带
阅读量:55
台达DOP-A/AE/AS系列触控式人机介面操作手册:[1]
阅读量:96
华谊MS8261、MS8264型数字多用表使用说明书
阅读量:106
网络收银字符叠加器如何安装
阅读量:69
猜你喜欢
小便黄是什么原因引起的
什么是闰年
smt是什么意思
10月14日是什么星座
陈述句是什么意思
ecu是什么意思
first是什么意思
开户网点是什么意思
趴着睡觉有什么坏处
物业费包括什么
猜你喜欢
陈百强什么原因怎么走的
胆囊炎有什么症状
陀螺仪有什么用
野餐带什么食物好
粘胶纤维是什么面料
印花税计入什么科目
开塞露是什么
右后背疼痛是什么原因
什么动物会冬眠
fashion是什么意思