酷家乐怎样快速生成施工图
1、在顶部工具栏中,找到图纸,进入视图管理器。

2、进入视图管理器后,即可看到左侧的平面视图,点击立面索引自动生成所有房间的立面视图。

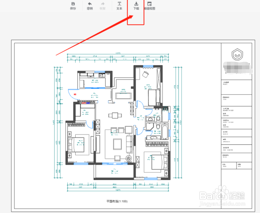
3、点击【生成图纸】进入图纸管理器调整图纸并下载或在右上方点击【发布】,生成施工图链接及二维码,支持在PC端和移动端上在线看图。

4、进入图纸管理器后,调整完图纸比例等等后,即可下载或发布图纸了。

声明:本网站引用、摘录或转载内容仅供网站访问者交流或参考,不代表本站立场,如存在版权或非法内容,请联系站长删除,联系邮箱:site.kefu@qq.com。
阅读量:188
阅读量:164
阅读量:132
阅读量:90
阅读量:152