小度生活
首页
美食营养
手工爱好
生活家居
返回
小度生活
首页
美食营养
游戏数码
手工爱好
生活家居
健康养生
运动户外
职场理财
情感交际
母婴教育
时尚美容
知识问答
生活知识
搜索
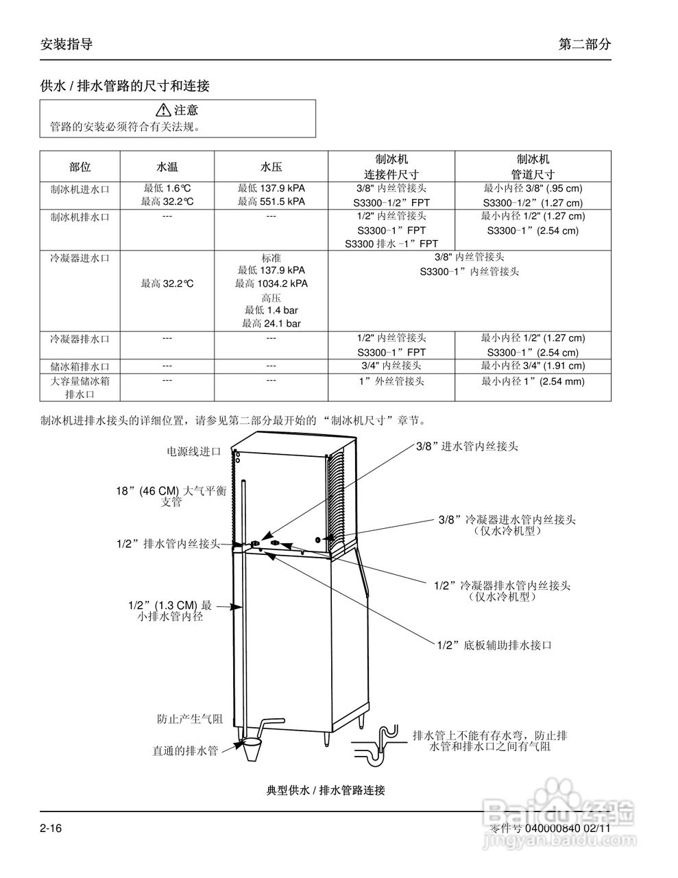
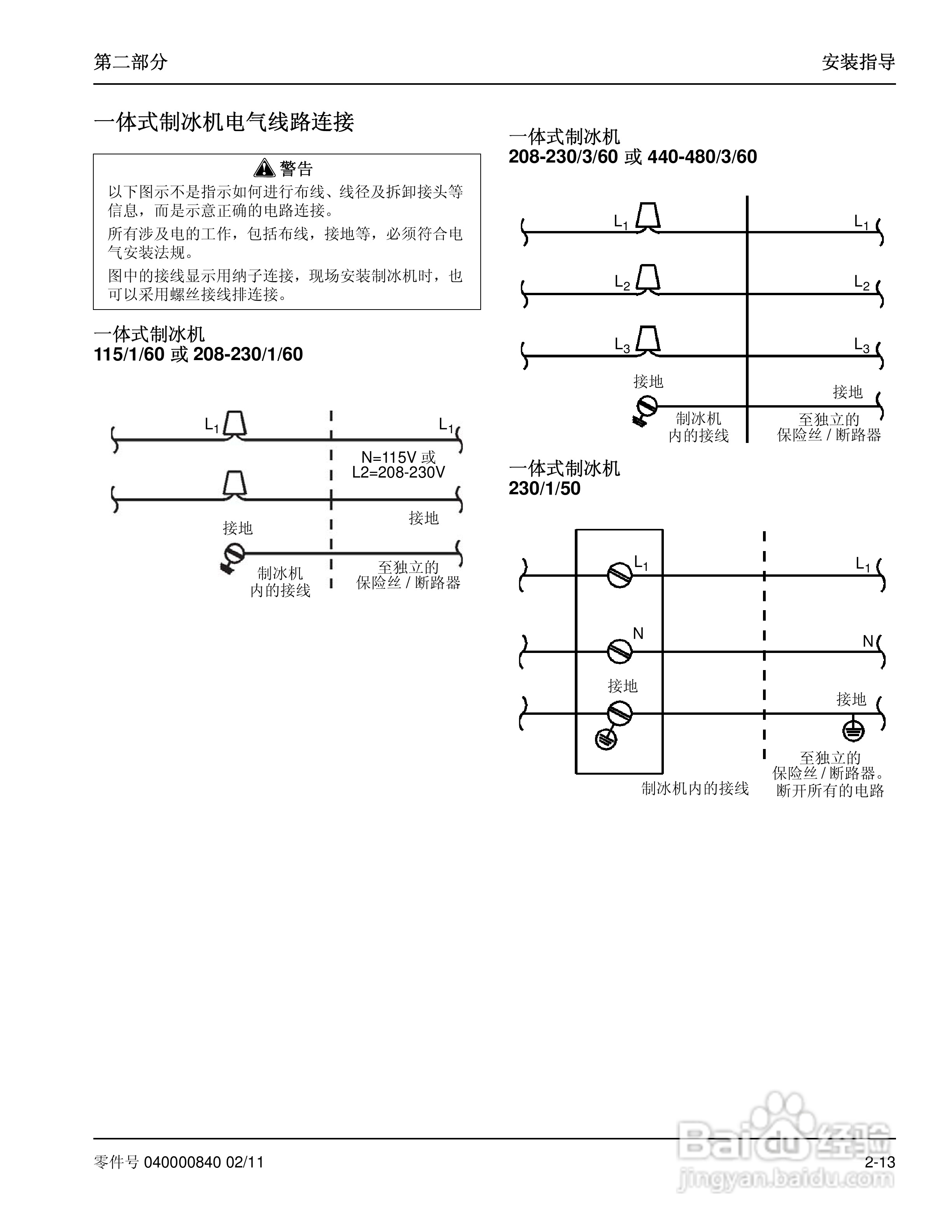
Manitowoc万利多SR1800A制冰机说明书:[3]
2026-01-20 15:04:02
/>
(共篇)
上一篇:
|
下一篇:
声明:
本网站引用、摘录或转载内容仅供网站访问者交流或参考,不代表本站立场,如存在版权或非法内容,请联系站长删除,联系邮箱:site.kefu@qq.com。
相关推荐
Manitowoc万利多SR1800A制冰机说明书:[1]
阅读量:95
Manitowoc万利多SR1800A制冰机说明书:[7]
阅读量:152
Manitowoc万利多SR1890N制冰机说明书:[3]
阅读量:154
制冰机制冰慢怎么调节
阅读量:180
制冰机不脱冰怎么处理
阅读量:154
猜你喜欢
skype是什么意思
puk码是什么
fps低是什么原因
550分能上什么大学
干贝是什么
投影仪流明是什么意思
什么是舍利子
黑松露是什么
kb什么意思
不但而且是什么关系
猜你喜欢
事业单位考试考什么
nervous是什么意思
11月有什么节日
special是什么意思
我能做什么
数字货币是什么
什么是公共关系
房地产泡沫是什么意思
客座教授是什么意思
三个水是什么字