安装造价该怎么学习经验分享
1、 熟悉图纸设计说明,不看图纸而学的造价都是纸上谈兵,因为你根本就不知道你在算什么,所以算出来毫无意义,图纸拿在手里先学设计说明。

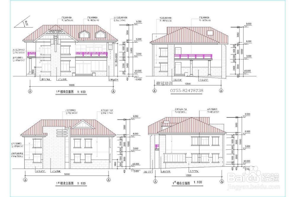
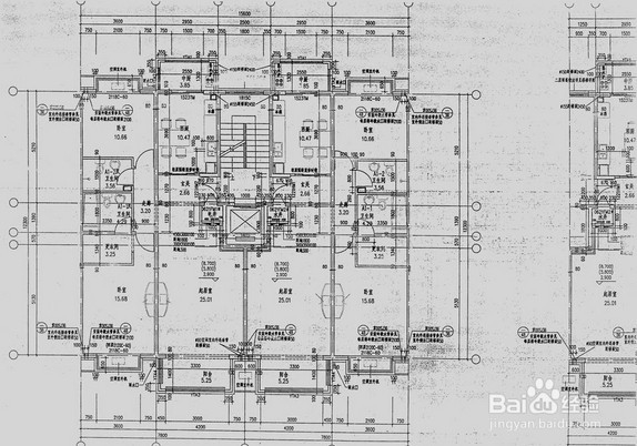
2、 然后学会识别平面图与系统图,建立立体建筑模型,平面图旨在告诉你布局,而立体图将整个系统结合在一起。这里建议先学手算,对你之后用安装锁画图有很大的帮助,有助于你真正了解管线组成,避免漏掉重要的工程量。

3、 初步了解计价软件,熟悉定额,学会组价。计价软件有很多,掌握一种自己最熟悉的即可。深入学习计价软件,学会调价、设计参数、修改费率。组价结束后,真正的难点就来了,这也是很多人难以突破的地方,只有加深对软件、定额、清单的理解,才能逐渐突破。

4、 深入体会计价软件,熟练使用。孰能生巧,只有你多练习,多学习,多复习,才能更快更好地学会安装造价。

声明:本网站引用、摘录或转载内容仅供网站访问者交流或参考,不代表本站立场,如存在版权或非法内容,请联系站长删除,联系邮箱:site.kefu@qq.com。