装修时如何设计开关、插座?
1、一、确认需求
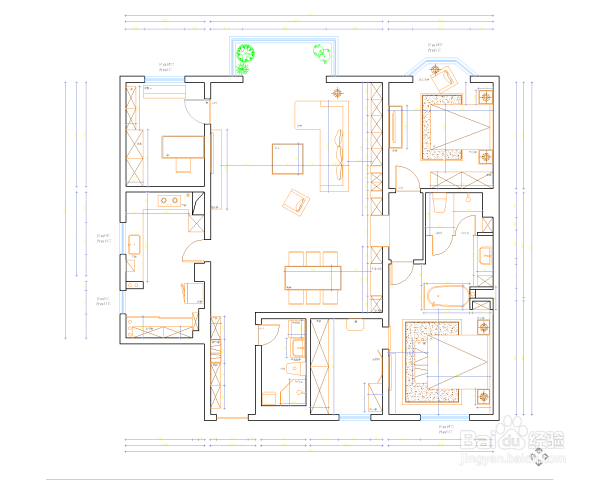
在最开始的时候,需要根据自己家里房子以及居住人员的实际情况,来确定自己家里的空间布局。在这个阶段,基本上家具想买多大,或者可以买多大,都以及被限定了。

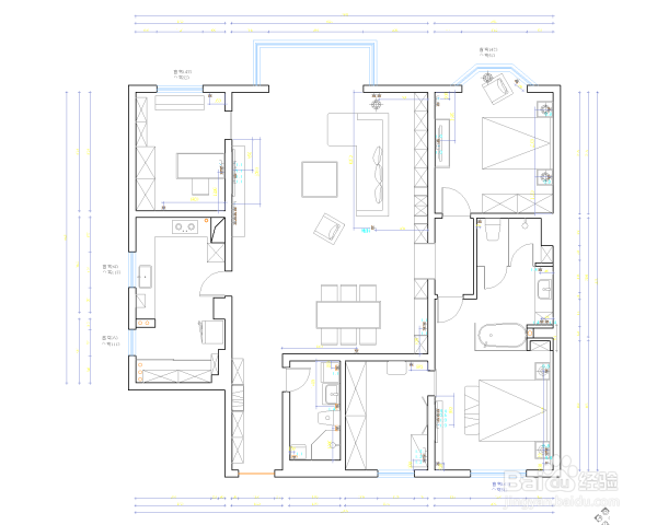
2、二、插座布置
当你在需求确认后,就可以根据户型布局图来着手设计插座了。首先我们要知道正常插座的高度:
强电箱高度:180-210cm
正常家用插座高度:40cm
挂墙电视插座高度:100cm
空调插座高度:距离顶面20cm
开关面板高度:140cm
橱柜操作台插座高度:120cm
橱柜油烟机插座高度:225cm(集成灶插座在橱柜地柜里面)
卫生间洗手盆插座高度:140cm
卫生间马桶插座高度:60cm
洗衣机插座高度:120cm
燃气热水器插座高度:140cm
电热水器插座高度:180cm
从方便使用来说,插座放在柜子的上面距离柜子15cm为最佳。
卧室
床头:两边各有插座以及双控开关。
书桌:插座一般在台面的上方,方便充电以及移动设备的使用。
电视机:需要两个插座电视机和机顶盒各需一个。
空调:需要16A插座一个。
客厅
沙发:沙发旁边需要一个插座(充电或者辅助灯具)
电视柜:一般需要四个插座、网络、有线电视面板。如果不够可适当增加。
空调:需要16A插座一个。
餐厅
餐桌:插座一个,留作备用火锅电源。
餐边柜:插座两个,留作电器使用。
厨房
洗菜盆:插座一个,留作小厨宝,净水器等电源(根据实际情况预留)
操作台:插座三个,留作电器使用。
烟机、灶具:一个插座,灶具大都使用干电池。如有燃气报警器,也需预留插座。
卫生间
洗手盆:两个插座。吹风机和电动牙刷一个,台盆下小厨宝一个。
马桶:一个插座,使用智能马桶时备用。
洗衣机:一个插座,如果与洗手盆放在一起做台面,也可以把插座放在洗手盆下面。
搞懂了以上插座常规的位置和高度我们再来设计插座时就会变得游刃有余。

声明:本网站引用、摘录或转载内容仅供网站访问者交流或参考,不代表本站立场,如存在版权或非法内容,请联系站长删除,联系邮箱:site.kefu@qq.com。
阅读量:182
阅读量:116
阅读量:127
阅读量:189
阅读量:93