小度生活
首页
美食营养
手工爱好
生活家居
返回
小度生活
首页
美食营养
游戏数码
手工爱好
生活家居
健康养生
运动户外
职场理财
情感交际
母婴教育
时尚美容
知识问答
生活知识
生活百科
搜索
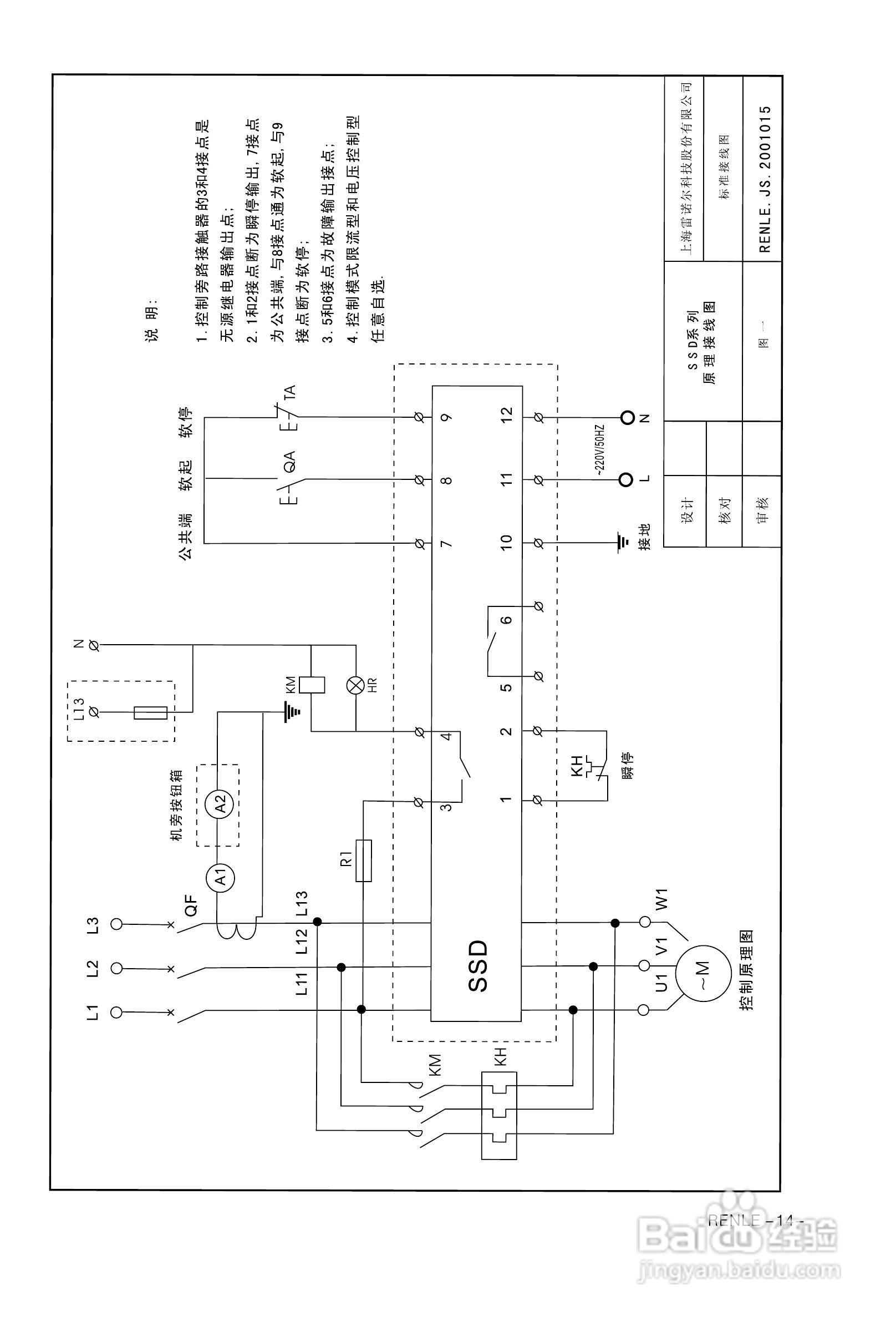
雷诺尔SSD-320软起动器用户手册:[2]
2026-04-07 10:26:09
本篇为《雷诺尔SSD-320软起动器用户手册》,主要介绍该产品的使用方法以及常见故障解决方案。
(共篇)
上一篇:
声明:
本网站引用、摘录或转载内容仅供网站访问者交流或参考,不代表本站立场,如存在版权或非法内容,请联系站长删除,联系邮箱:site.kefu@qq.com。
相关推荐
海浦蒙特HD20-4T5P5G多功能变频器用户手册:[6]
阅读量:196
新妈妈学4招防止婴儿吐奶
阅读量:41
征途2怎样做转职任务
阅读量:110
明日之后黑huo药怎么获得
阅读量:160
企查查怎么设置真实姓名
阅读量:141
猜你喜欢
王者荣耀新赛季什么时候开始
nice什么意思
利率是什么意思
泥头车什么梗
白茶属于什么茶
什么是英雄
咖啡什么时候喝最好
夹腿是什么意思
end是什么意思
cmd是什么
猜你喜欢
域名是什么
头孢是什么药
化疗是什么
不必给我安慰何必怕我伤悲什么歌
徘徊是什么意思
会计学什么
offer是什么意思
什么的小溪
9月30日是什么星座
延米是什么意思