外测液位计的安装步骤
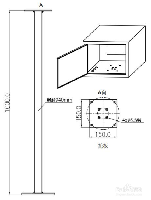
1、根据仪表箱保护箱安装原则及现场实际工况,在罐区选取合理的位置,采用 4 只 M10-25 膨胀螺;

2、仪表保护箱使用 4 只 M5-20 螺栓安装于支撑架顶端的托板之上

3、液位计主体在仪表保护箱内的安装固定使用 4 只 M6-30 紧固螺栓(此步骤在接线或调试完成之后进行);

声明:本网站引用、摘录或转载内容仅供网站访问者交流或参考,不代表本站立场,如存在版权或非法内容,请联系站长删除,联系邮箱:site.kefu@qq.com。
阅读量:146
阅读量:120
阅读量:92
阅读量:116
阅读量:116