cad如何一次性画明细栏及标题栏。
1、打开格式/表格样式。

2、点击新建。

3、命名,并点击继续。

4、格式选择常规,点击文字样式可以设置样式。

5、一般选择下图的文字样式,点击应用。

6、对齐选正中。

7、可以自由选择,边框颜色,及线宽。效果看预览窗口。

8、字高和垂直是有关系的。单元个高度=字号/四分之三*行+垂直*2。经计算5号字对应垂直高0.66.

9、设置好后,点击确定。并应用。列标题和标题(现在为数据设置,列标题和标题在数据旁,如图)的设置与上面的类似。可选列标题为上和下。


1、点击绘图,表格。

2、选择表格样式和表格行与列和列宽(13),点击确定即可。

3、四点都可改变表格数据如行高,列宽。任选一点右击选者移动即可。

4、双击单元格壳输入文字。

5、中间的点可以改变列宽,前面设置的是13,如果目标列宽为15,输入2回车即可。

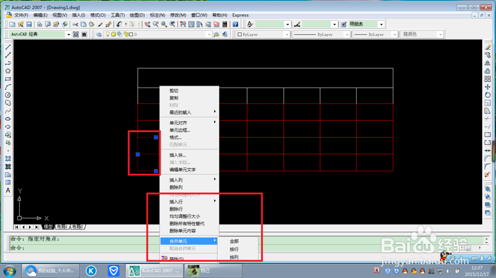
6、选择一个单元格,按右键可以加行加列。选择多个单元格(按上档键可多选),按右键可合并。

声明:本网站引用、摘录或转载内容仅供网站访问者交流或参考,不代表本站立场,如存在版权或非法内容,请联系站长删除,联系邮箱:site.kefu@qq.com。
阅读量:158
阅读量:125
阅读量:32
阅读量:108
阅读量:140