小度生活
首页
美食营养
手工爱好
生活家居
返回
小度生活
首页
美食营养
游戏数码
手工爱好
生活家居
健康养生
运动户外
职场理财
情感交际
母婴教育
时尚美容
知识问答
生活知识
生活百科
搜索
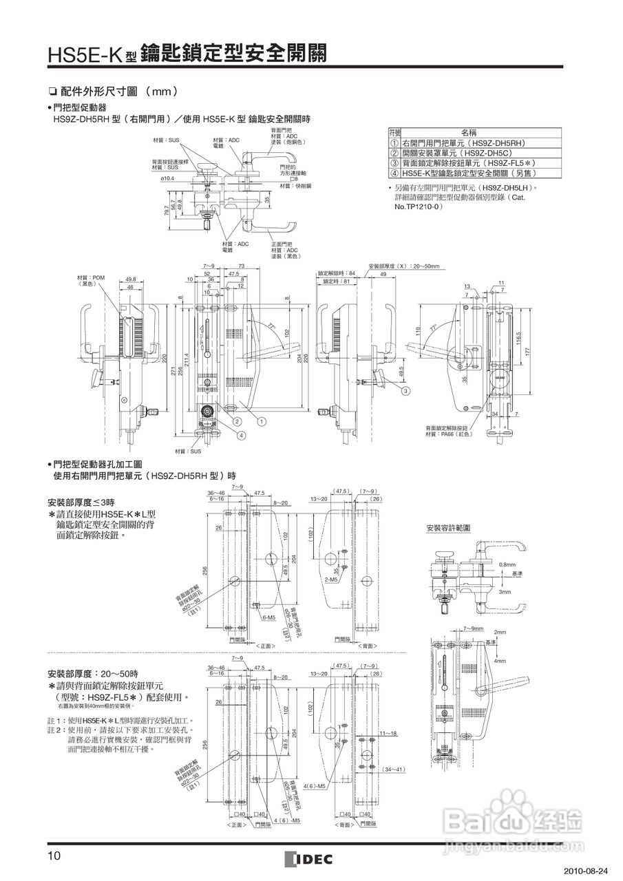
和泉电气钥匙锁定型安全开关HS5E-K使用说明书:[1]
2026-05-26 04:19:52
本篇为《和泉电气钥匙锁定型安全开关HS5E-K使用说明书》,主要介绍该产品的使用方法以及常见故障解决方案。
(共篇)
下一篇:
声明:
本网站引用、摘录或转载内容仅供网站访问者交流或参考,不代表本站立场,如存在版权或非法内容,请联系站长删除,联系邮箱:site.kefu@qq.com。
相关推荐
steam怎样自我锁定
阅读量:29
锁定计算机:[3]锁定屏幕
阅读量:160
如何安全锁定主页
阅读量:70
如何锁定主页
阅读量:87
如何锁定你的主页
阅读量:119
猜你喜欢
婴幼儿奶粉什么牌子好
一毛不拔的意思
袜子什么牌子质量好
象牙塔是什么意思
鞋油什么牌子好
精神矍铄的意思
什么什么平衡器
军令状是什么意思
欲哭无泪的意思
not at all是什么意思
猜你喜欢
rohs是什么意思
稀世珍宝的意思
违和感是什么意思
残保金入什么科目
数字货币是什么意思
边际效应是什么意思
引人入胜是什么意思
4岁宝宝学什么
楷模的意思
tik tok什么意思