小度生活
首页
美食营养
手工爱好
生活家居
返回
小度生活
首页
美食营养
游戏数码
手工爱好
生活家居
健康养生
运动户外
职场理财
情感交际
母婴教育
时尚美容
知识问答
生活知识
生活百科
搜索
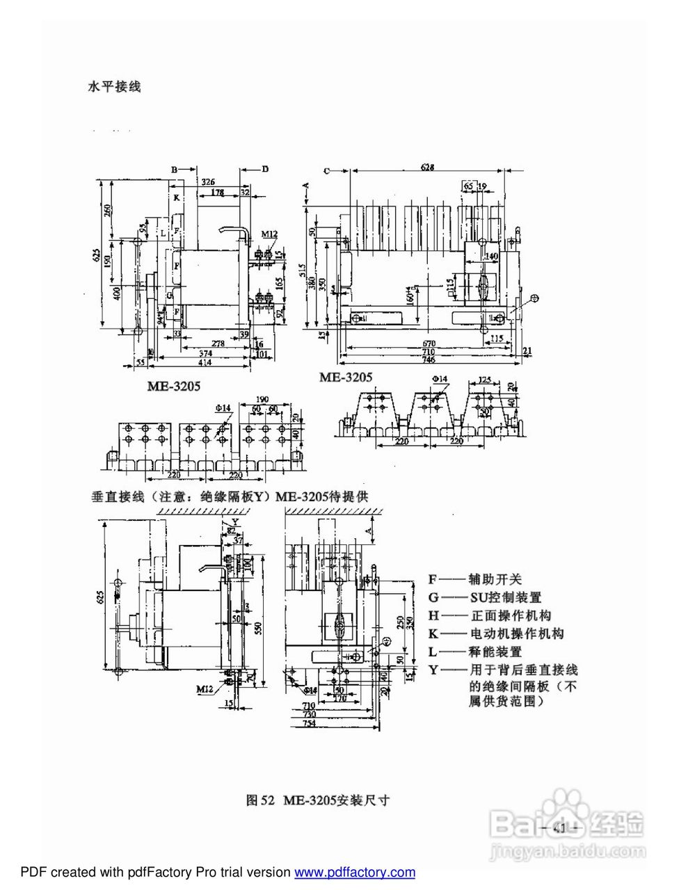
ME-630万能断路器说明书:[5]
2026-05-03 12:37:44
本篇为《ME-630万能断路器说明书》,主要介绍该产品的使用方法以及常见故障解决方案。
(共篇)
上一篇:
|
下一篇:
声明:
本网站引用、摘录或转载内容仅供网站访问者交流或参考,不代表本站立场,如存在版权或非法内容,请联系站长删除,联系邮箱:site.kefu@qq.com。
相关推荐
笔记本键盘修理方法
阅读量:174
【终极教程】如何免费体验最近火热的专车服务
阅读量:188
T410笔记本键盘按键失灵修理方法
阅读量:190
ThinkPad R61i更换风扇实战
阅读量:32
《第九大陆》玩家对道术师技能加点心得分享
阅读量:129
猜你喜欢
tomorrow是什么意思
12月21日是什么星座
草莓是什么意思
mua是什么意思
170是什么码
申根签证是什么意思
iptv是什么
大象的左耳朵像什么
nervous是什么意思
望尘莫及什么意思
猜你喜欢
hook是什么意思
梅子黄时是什么季节
七嘴八舌是什么生肖
什么叫做互质数
libor是什么意思
mbi是什么意思
add什么意思
九月初九是什么节日
房产税什么时候开始征收
和彩云是什么