如何解析一套80平米的简美装修案例
1、首先了解业主的需求:
这是一套室内60平米两房捕泰一厅一卫,带一个20平米院子的住宅,院子周围有围墙隔起,顶面全封阳光房,房子的主人是一对年轻闲低夫妻,平日工作比较繁忙,因此希望回到家就是回到了自己自由的天地,在家做饭的几讨哨岔率很少,五年内暂时不会考虑要孩子,如果将来考虑要孩子会把这套房子留给父母居住,自己换一套大一些的房子。父母有自己的房子因此不常来,也不会来过夜。女主人喜欢看书喝茶,一直很向往能拥有一个周末能晒晒太阳、看看书、听听音乐消磨时光的书吧。男的喜欢健身,需要一台跑步机。
1、在了解业主需求的同时,进行房屋的彻底全面的测量,这样我们才能画出准确的原始户型图,以做为后面的设计所使用。当然,房屋的各种结构及格局都需要了然于心,并做好记录,这样才能正确的修改图纸及设计,以至于不会在后期的施工中遇到难题,比如:这个墙不能敲之类的结构问题。

1、 我们经手的每个案子,业主都会有诉求,有些诉求是希望改善之前的居住习惯,有些是有自己的想法和期待,有一些是希望设计师能满足一些功能需求......等等,但是很多客户其实并不知道他们买的房子究竟能帮他们做什么,仅仅只为了遮风挡雨吗?
房子本身能发挥的最大极限是什么?这就好比说5吨的货车最大能载重5吨,10吨的货车最大能载重10吨,这就是极限。货车载重是有标注的,但是房子的功能和舒适性却是没有标注的,它是需要设计师去开发的。好的方案可以让住宅的功能和美观发挥到极致,但是差的方案或许带来的是各种使用不便,装饰效果也不堪理想。
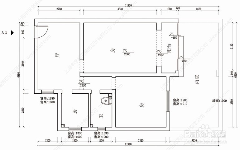
要想将房子的最大优势发挥出来,第一步就是要搞清楚原始户型的优缺点。
■入口处到两个房间的动线,斜向穿过了整个厅的部分,使得利用率降低。
■入口处相对较暗,采光不足。
■由于不经常做饭,因此厨房可能会变成一个闲置区域。
■卫生间面积比较小,舒适度欠佳。
■一间房间面积较大,可以考虑做厅使用;另一间房大小适中,可以考虑做主卧室使用。
根据以上的优缺点,我们来看看【一般设计师VS中孚空间】设计师的设计方案

1、 资历不够的一般设计师都会考虑把餐厅和厨房放置在图中位置,但是卫生间大小的问题也仍然无法改善
那我们试想,因为业主做饭几率很小,其实这个厨房的功能更多可能是用来煮面、做咖啡、果汁、烘焙等等,这些与休闲有关的作业,那么他们其实有没有燃气并不重要,一个电磁炉一样可以解决问题;如果能将这个区域搬到阳台,这里留给卫生间做拓展区域会不会是一举两得的想法呢!
按照这个思路,厨房如果搬离了原本位置,那么餐厅肯定也一起移到露台,那么原本餐厅的位置空出来后是否能帮业主做一个衣帽间呢?这样是不是超出了他们的需求呢?
朝着这个思路,几番调整后,我们的布局赢得了业主最终的认可。
自然光,也就是平时大家所关心的室内采光问题,我们的设计在这方面有什么亮点呢?让我们来看看《自然光影响室内空间分析图》
可以看出主要的功能区域都可以被自然光影响到,室内的采光效果非常好。值得注意的是,甚至是自然光线的强弱度能影响到的范围,都在室内设计师构思平面布局时已经考虑进去了。比如衣帽间区域(自然光线下衣服的色差小),梳妆台(梳妆需要的光线),穿衣镜的位置(人站立的位置面部及全身正面是可以被自然光线影响到的,这样镜子里看上去人物才会明亮),卫生间的洗手台盆区域(洗漱需要的光线)等等。设计师在考虑布局的时候会尽量减少背光的几率,让功能区域更多接触和接近自然光。
如何提高生活品质?设计师需要非常清楚的了解业主的生活习惯及期望,并把这些元素巧妙的融入设计中,使的生活流线自然又舒适。
行为流线又称为生活动线,是人在室内不同功能区域生活轨迹。如果动线舒适,则空间使用率高、效率高、易打理易维护,对生活品质影响非常大。让我们来看看《行为流线分析图》,并列举分析4条不同的动线加以说明。
■ 紫色流线---日常回家后的流线
进门→换鞋→挂外套→放置手提袋等物品→沙发区域休息→开冰箱取饮料→厨房取点心■ 绿色流线---日常休闲流线
烹饪→餐饮→休息上网听音乐看书→进卧室■ 蓝色流线---晚上出门参加聚会流线
客厅→卫生间洗漱→换衣→化妆→对比鞋包衣物→出门■ 浅蓝流线---睡前流线
卫生间→泡浴后→浴巾→直接进入卧室
※ 还有出门流线,以及多种流线组合,这里不一一列举了。

1、大家看到这里,就应该能看到这个80平米温馨两房的大致布局了。是不是还觉得不够呢?哈哈~下面让我们来看看每个空间细节布置在设计师的精心设计下,是如何呈现在业主面前的!这些设计是否满足了业主的需求,是否有另外的惊喜等待着业主呢,废话不多说,赶紧看下面的《局部分析图》。







