尼康DTM-522、532、552_DTM_NPL 332、352系列全站仪使:[10]

2025-10-23 23:28:01

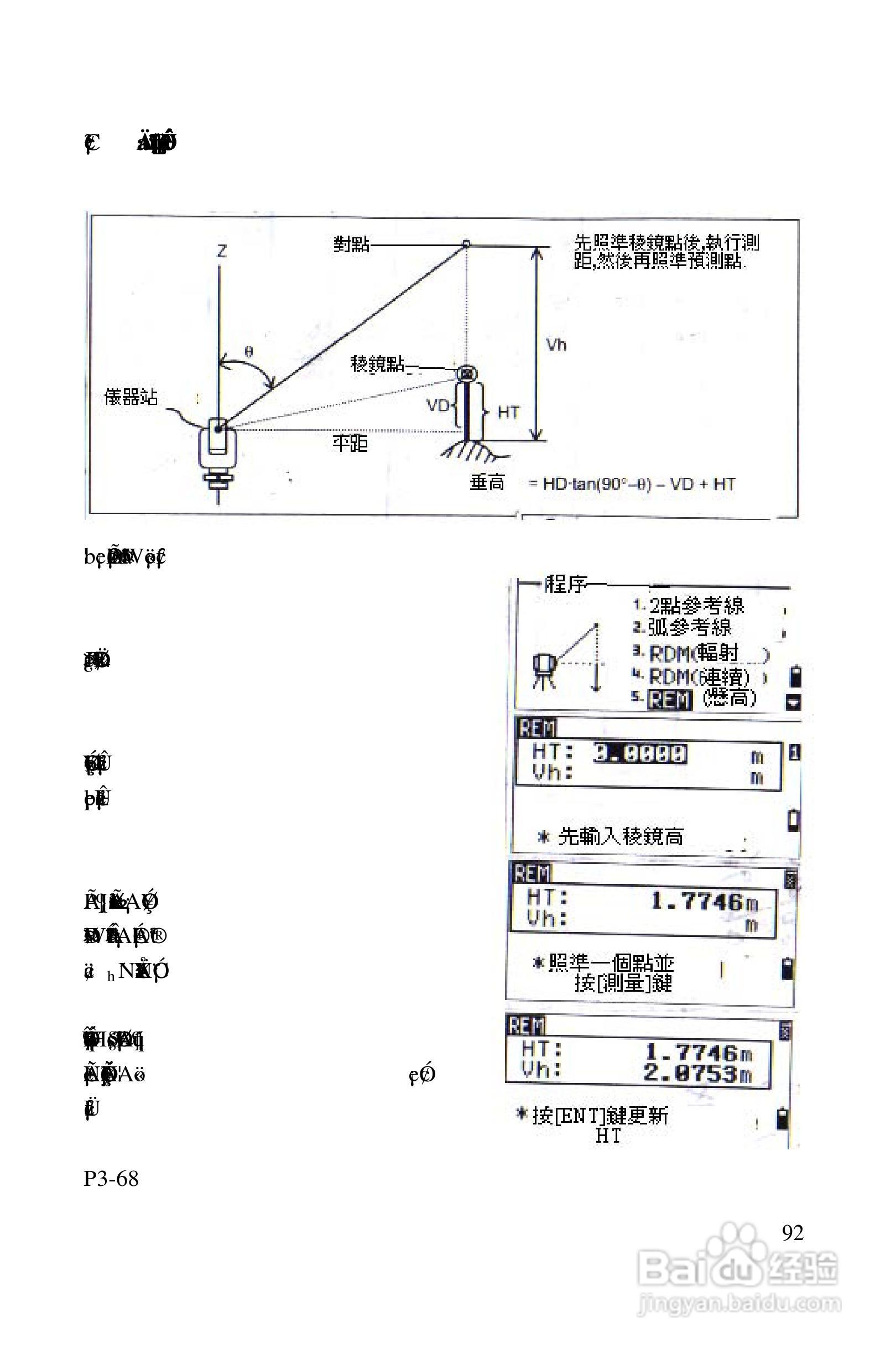
本篇为《尼康DTM-522、532、552_DTM_NPL 332、352系列全站仪使》,主要介绍该产品的使用方法以及常见故障解决方案。

 

尼康DTM-522、532、552_DTM_NPL 332、352系列全站仪使:[10]

尼康DTM-522、532、552_DTM_NPL 332、352系列全站仪使:[10]

尼康DTM-522、532、552_DTM_NPL 332、352系列全站仪使:[10]

尼康DTM-522、532、552_DTM_NPL 332、352系列全站仪使:[10]

尼康DTM-522、532、552_DTM_NPL 332、352系列全站仪使:[10]

尼康DTM-522、532、552_DTM_NPL 332、352系列全站仪使:[10]

尼康DTM-522、532、552_DTM_NPL 332、352系列全站仪使:[10]

尼康DTM-522、532、552_DTM_NPL 332、352系列全站仪使:[10]

尼康DTM-522、532、552_DTM_NPL 332、352系列全站仪使:[10]

尼康DTM-522、532、552_DTM_NPL 332、352系列全站仪使:[10]

(共篇)上一篇:|下一篇:
声明:本网站引用、摘录或转载内容仅供网站访问者交流或参考,不代表本站立场,如存在版权或非法内容,请联系站长删除,联系邮箱:site.kefu@qq.com。
猜你喜欢