小度生活
首页
美食营养
手工爱好
生活家居
返回
小度生活
首页
美食营养
游戏数码
手工爱好
生活家居
健康养生
运动户外
职场理财
情感交际
母婴教育
时尚美容
知识问答
生活知识
生活百科
搜索
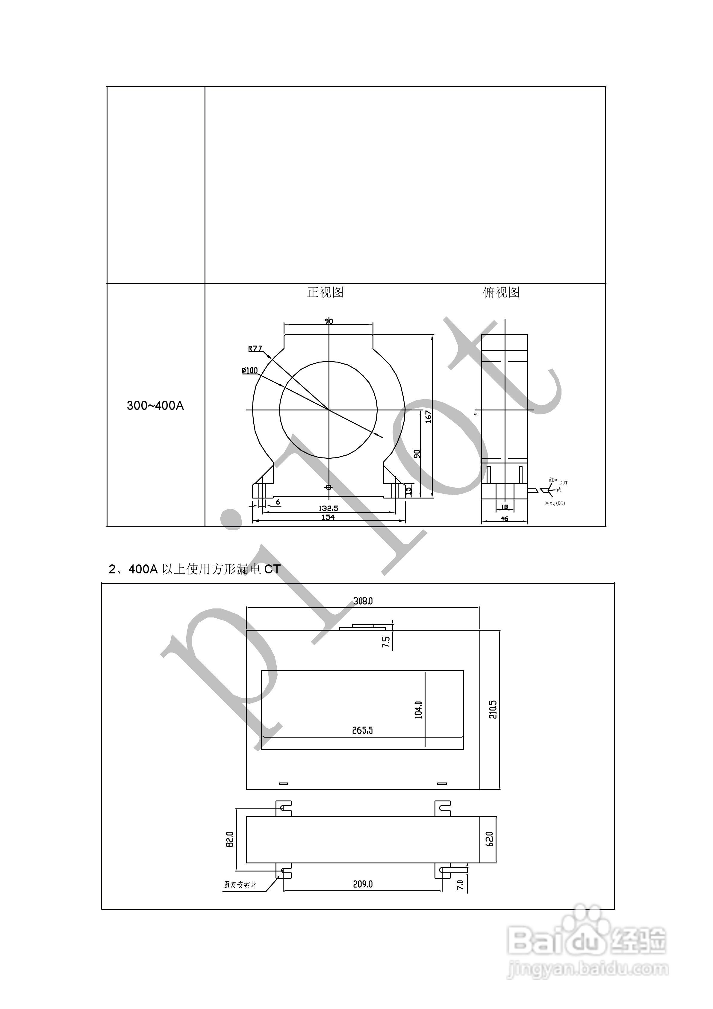
PMAC503BD电气火灾监控探测器说明书:[2]
2026-03-31 12:49:11
本篇为《PMAC503BD电气火灾监控探测器说明书》,主要介绍该产品的使用方法以及常见故障解决方案。
(共篇)
上一篇:
|
下一篇:
声明:
本网站引用、摘录或转载内容仅供网站访问者交流或参考,不代表本站立场,如存在版权或非法内容,请联系站长删除,联系邮箱:site.kefu@qq.com。
相关推荐
PMAC503BD电气火灾监控探测器说明书:[1]
阅读量:123
线管堵塞探测器
阅读量:31
监控密码一般是多少
阅读量:153
监控摄像头怎么安装 安装图解具体流程
阅读量:31
监控摄像头安装流程
阅读量:96
猜你喜欢
豆角的做法大全家常
心理素质差怎么办
h3c路由器怎么样
嘴唇干燥紧绷怎么回事
小孩打呼噜是怎么回事
亲戚借钱不还怎么办
清明节英语怎么说
广电宽带怎么样
宿醉怎么办
隧道施工方法
猜你喜欢
萨米特瓷砖怎么样
绶带的佩戴方法
窗户隔音的最佳方法
电脑防火墙怎么关
绿萝的养殖方法和注意事项
牙齿美白的方法
奇迹三代翅膀怎么合成
鞋子磨脚后跟怎么办
总是犯困是怎么回事
描写方法有哪些