小度生活
首页
美食营养
手工爱好
生活家居
返回
小度生活
首页
美食营养
游戏数码
手工爱好
生活家居
健康养生
运动户外
职场理财
情感交际
母婴教育
时尚美容
知识问答
生活知识
生活百科
搜索
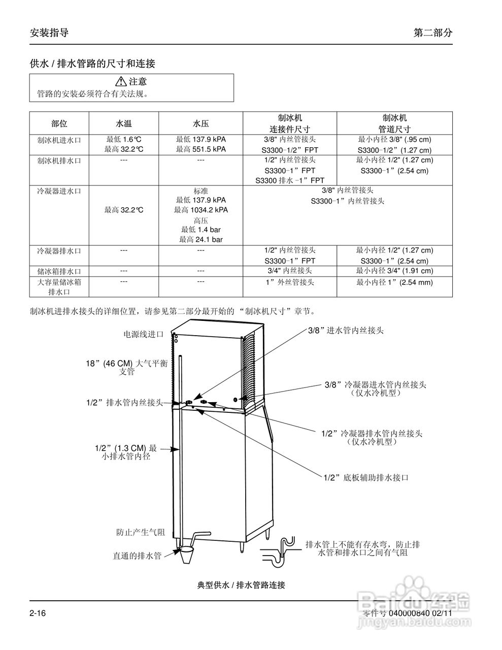
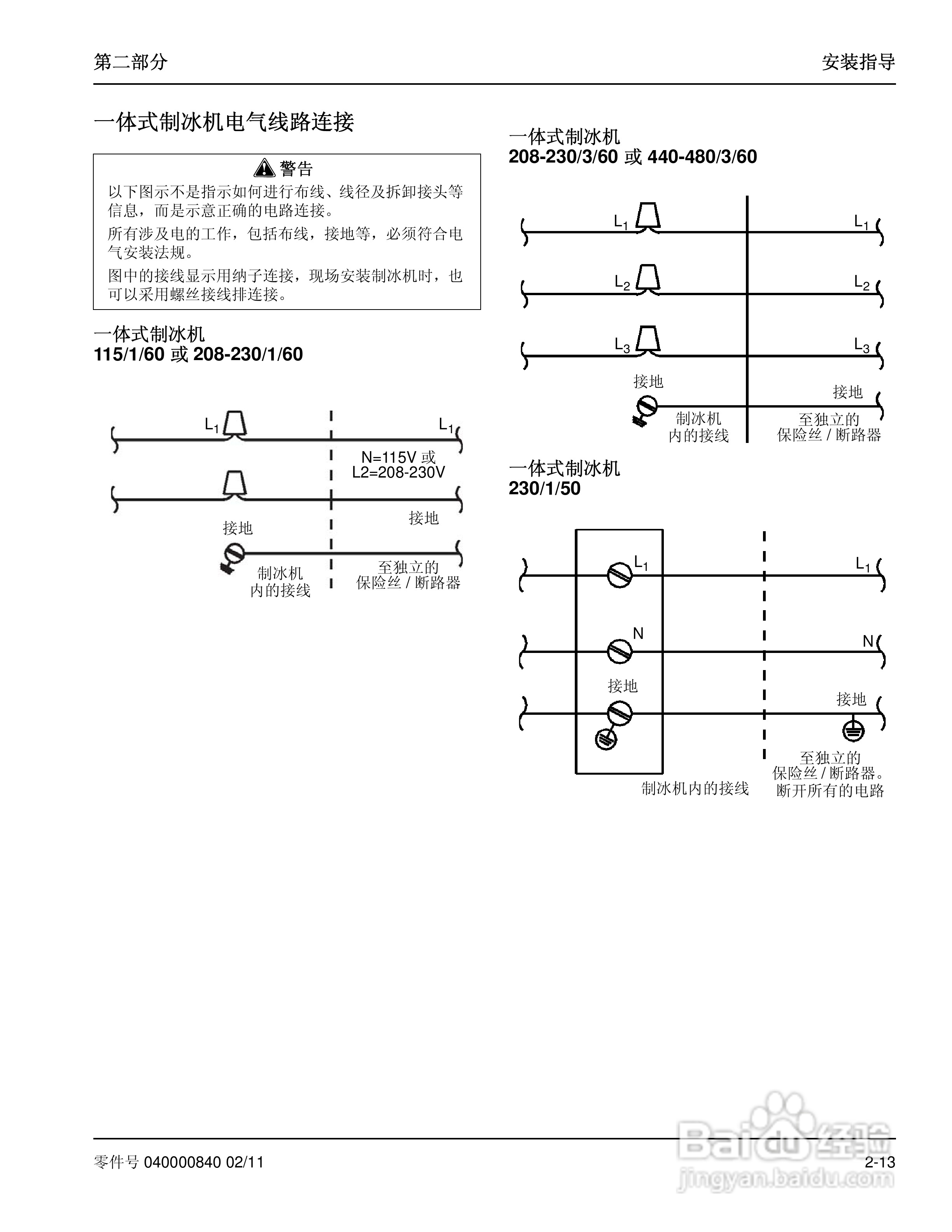
Manitowoc万利多SY1894N制冰机说明书:[3]
2026-03-28 16:59:16
/>
(共篇)
上一篇:
|
下一篇:
声明:
本网站引用、摘录或转载内容仅供网站访问者交流或参考,不代表本站立场,如存在版权或非法内容,请联系站长删除,联系邮箱:site.kefu@qq.com。
相关推荐
Manitowoc万利多SY1894N制冰机说明书:[7]
阅读量:107
Manitowoc万利多SR1890N制冰机说明书:[3]
阅读量:182
Manitowoc万利多SY1804A制冰机说明书:[3]
阅读量:137
Manitowoc万利多QY0214A制冰机说明书:[3]
阅读量:111
制冰机制冰慢怎么调节
阅读量:28
猜你喜欢
宫斗小游戏大全
狗名字大全
经常便秘怎么调理
筷子兄弟电影大全
梵高简介
怎么治疗痛经
qq怎么看单向好友
黄金怎么做
胡雪岩简介
顺辉瓷砖怎么样
猜你喜欢
美的燃气灶怎么样
三国杀武将大全
海马s5怎么样
分析报告怎么写
鼻子有黑头怎么办
鼻涕多是怎么回事
小孩抵抗力差怎么办
大闸蟹怎么做最好吃
脸型大全
板报花边图案大全