小度生活
首页
美食营养
手工爱好
生活家居
返回
小度生活
首页
美食营养
游戏数码
手工爱好
生活家居
健康养生
运动户外
职场理财
情感交际
母婴教育
时尚美容
知识问答
生活知识
搜索
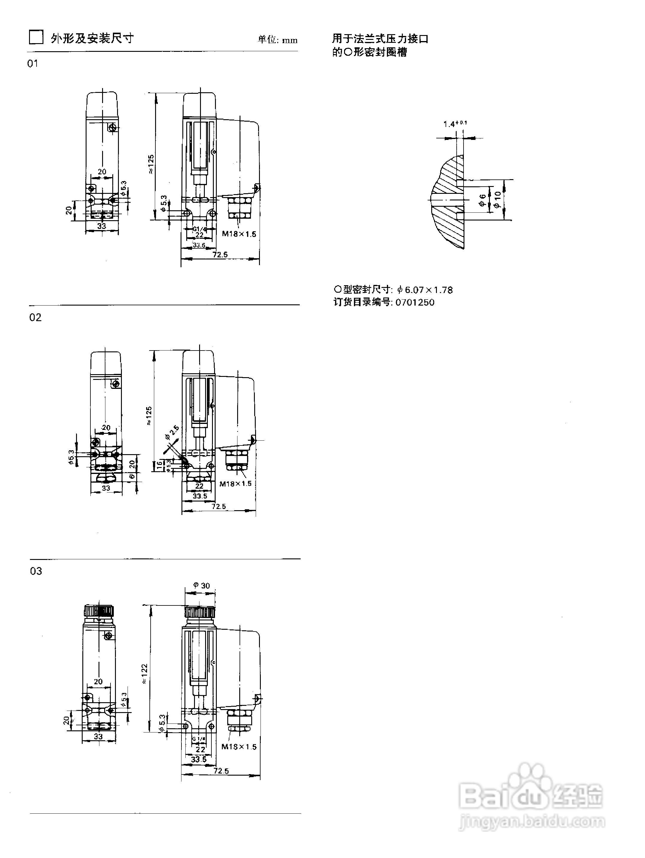
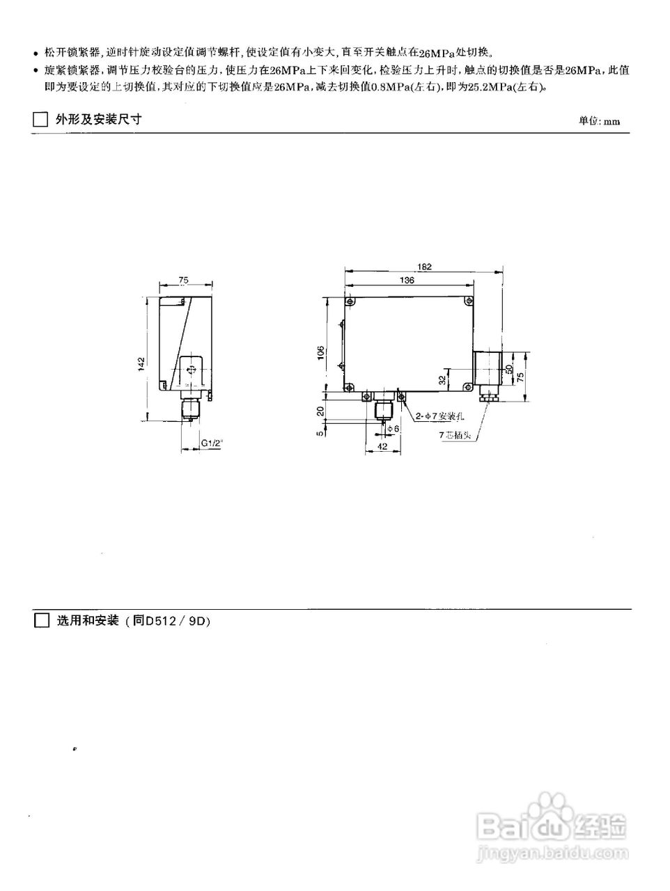
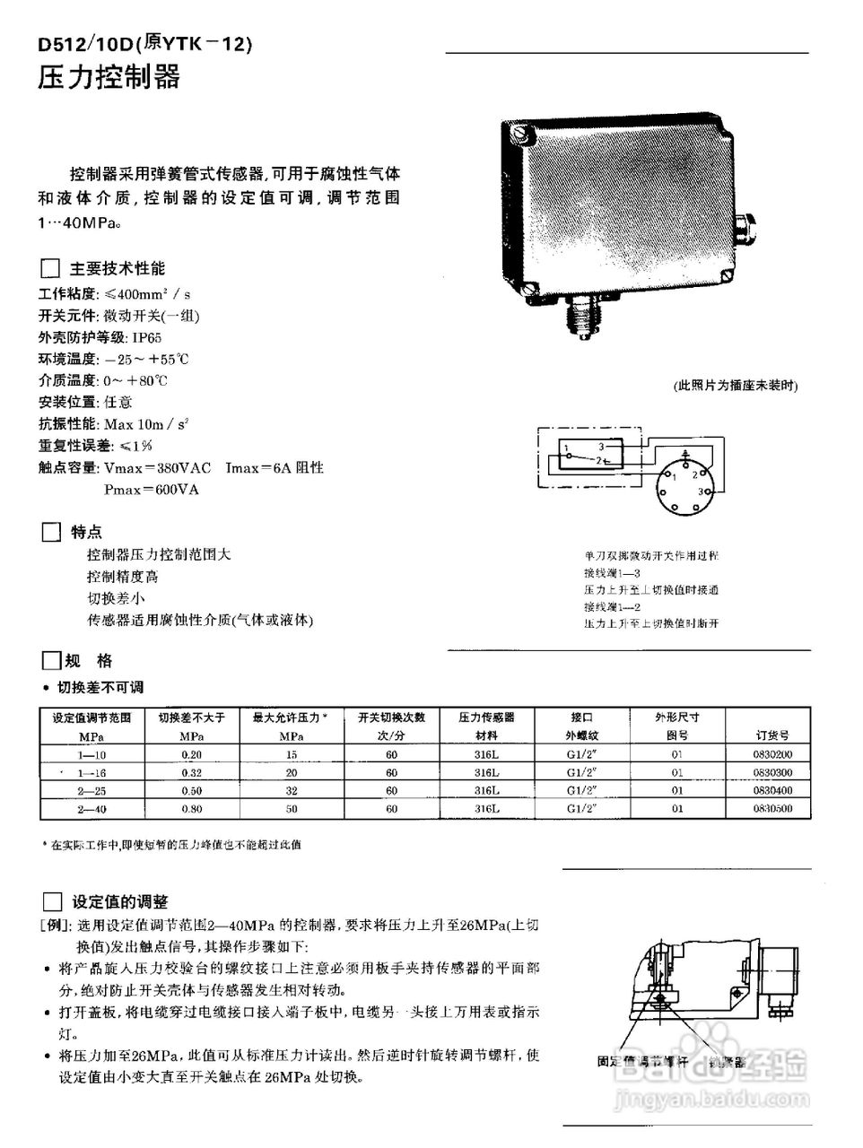
YPK-03-C船用(膜片)压力控制器使用说明书:[5]
2026-01-14 07:13:48
本篇为《YPK-03-C船用(膜片)压力控制器使用说明书》,主要介绍该产品的使用方法以及常见故障解决方案。
(共篇)
上一篇:
|
下一篇:
声明:
本网站引用、摘录或转载内容仅供网站访问者交流或参考,不代表本站立场,如存在版权或非法内容,请联系站长删除,联系邮箱:site.kefu@qq.com。
相关推荐
YPK-03-C船用(膜片)压力控制器使用说明书:[4]
阅读量:141
船用液压锚机介绍
阅读量:146
船用铜质消防阀
阅读量:28
船用蓄电池怎么充电
阅读量:79
船用消防栓简介
阅读量:74
猜你喜欢
摩托车没油了怎么办
瑜伽倒立怎么练
有人问我你究竟是哪里好是什么歌
cdr如何抠图
如何在网上开店
哪里地震
新鞋子挤脚怎么办
韩后的护肤品怎么样
哪里能看片
西双版纳在哪里
猜你喜欢
生栗子怎么做好吃
小米路由器青春版
大别山在哪里
如何修改wifi密码
鼻子短怎么办
如何锻炼腹肌
如何制作动画
怎么设置共享
工作检查怎么写
响沙湾旅游景区