铁路桥梁坐标的计算
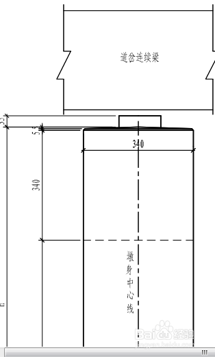
1、读图,识别图纸尺寸:分别读取侧面尺寸,正面尺寸,方便桩号的计算和偏距的计算。


2、读取尺寸后,根据软件计算墩中心点坐标和该点的切线方位角。
3、根据切线方位角分别推出墩柱需要计算点方向的方位角,以及墩柱中心距各待计算点的尺寸,
4、根据坐标正算,计算待计算点的坐标。
5、计算方法还有很多,这是最基本最简单的一种,如果有不明白的,需要探讨的,可以加QQ1623002215
声明:本网站引用、摘录或转载内容仅供网站访问者交流或参考,不代表本站立场,如存在版权或非法内容,请联系站长删除,联系邮箱:site.kefu@qq.com。
阅读量:103
阅读量:123
阅读量:113
阅读量:104
阅读量:126