装修水电怎么走比较好
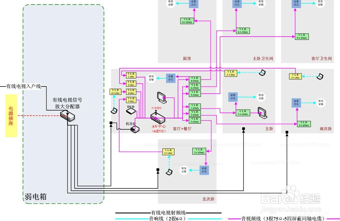
1、第一,首先要详细设计布水电管结构图,如图所示这样。要明白哪里需要水龙头出水从哪里进水,哪里需要热水加热等,电子设备用电设备这些具体方位。然后设置牵线布局,匹配材料数量。

2、第二,走电线时要注意需要pcb绝缘管进行绝缘处理。

3、第三,走线电源端口输出时,要注意上面是电源下面是水源,这样保证水电安全,不产生漏电想象。所有吊顶都是一样”上电下水“的规律布局。

4、第四,必要时需要墙壁和地表开凿工作,确保四壁、地表平整美观。

声明:本网站引用、摘录或转载内容仅供网站访问者交流或参考,不代表本站立场,如存在版权或非法内容,请联系站长删除,联系邮箱:site.kefu@qq.com。