小度生活
首页
美食营养
手工爱好
生活家居
返回
小度生活
首页
美食营养
游戏数码
手工爱好
生活家居
健康养生
运动户外
职场理财
情感交际
母婴教育
时尚美容
知识问答
生活知识
生活百科
搜索
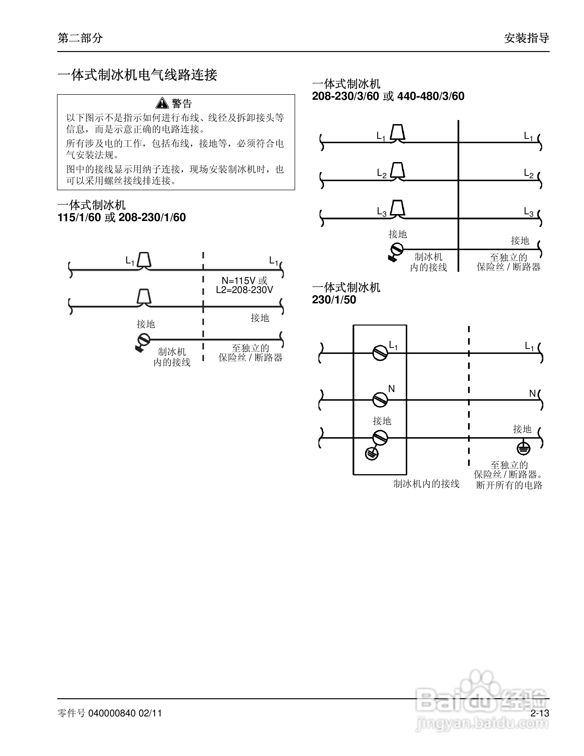
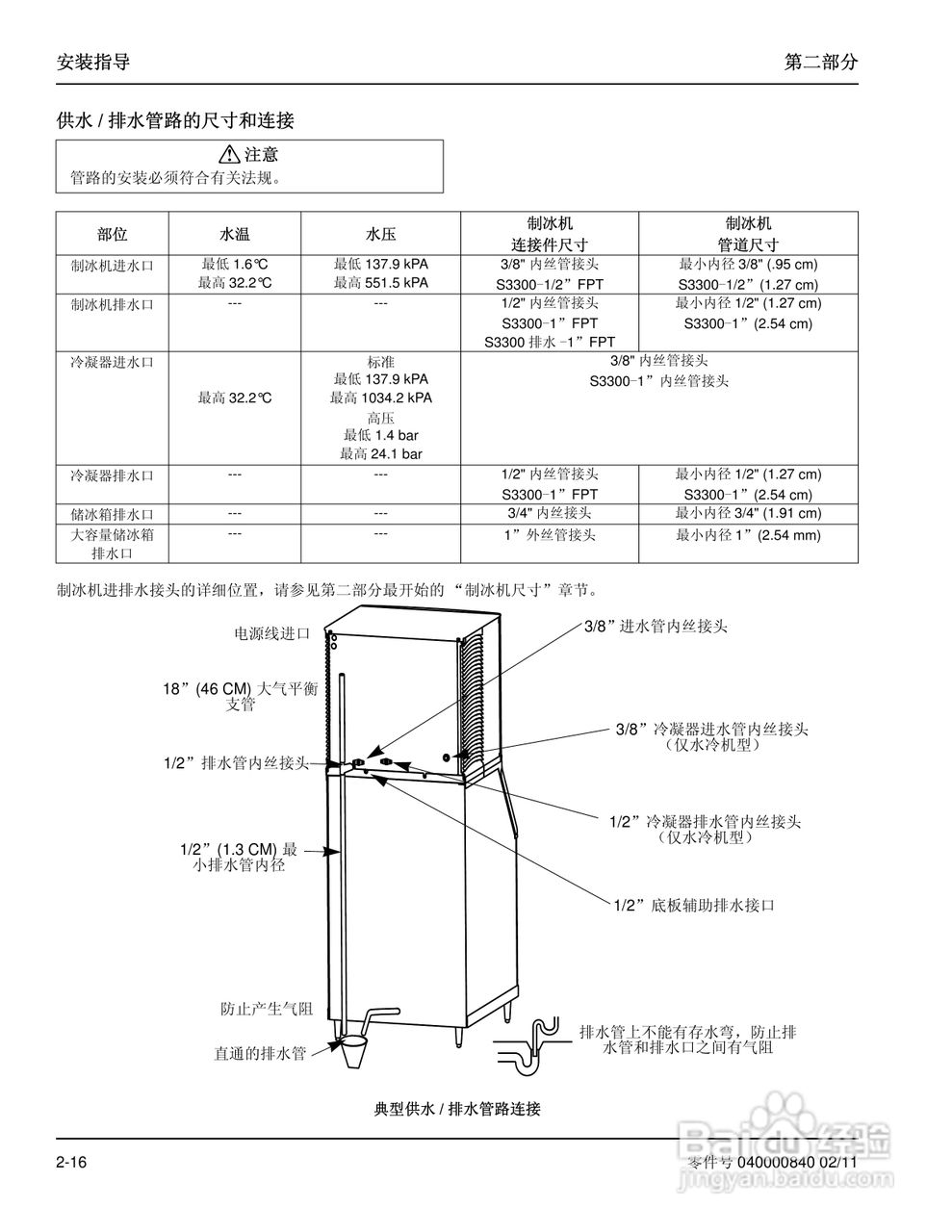
Manitowoc万利多SY0505W制冰机说明书:[3]
2026-03-28 02:47:01
/>
(共篇)
上一篇:
|
下一篇:
声明:
本网站引用、摘录或转载内容仅供网站访问者交流或参考,不代表本站立场,如存在版权或非法内容,请联系站长删除,联系邮箱:site.kefu@qq.com。
相关推荐
Manitowoc万利多SY0505W制冰机说明书:[5]
阅读量:49
Manitowoc万利多SY0505W制冰机说明书:[2]
阅读量:89
Manitowoc万利多SY3305W制冰机说明书:[3]
阅读量:116
制冰机制冰慢怎么调节
阅读量:41
制冰机不脱冰怎么处理
阅读量:117
猜你喜欢
08f是什么材料
height什么意思
什么是管理者
定焦镜头适合拍什么
虎视眈眈是什么意思
pond是什么意思
小狗什么时候打疫苗
甘蓝是什么
others什么意思
运动健身
猜你喜欢
腌肉的腌制方法
充气娃娃什么感觉
避孕环是什么
为运动员加油的句子
负荆请罪是什么故事
failure是什么意思
三姓家奴是什么意思
玻尿酸是什么东西
海参养殖
氯喹是什么药