小度生活
首页
美食营养
手工爱好
生活家居
返回
小度生活
首页
美食营养
游戏数码
手工爱好
生活家居
健康养生
运动户外
职场理财
情感交际
母婴教育
时尚美容
知识问答
生活知识
生活百科
搜索
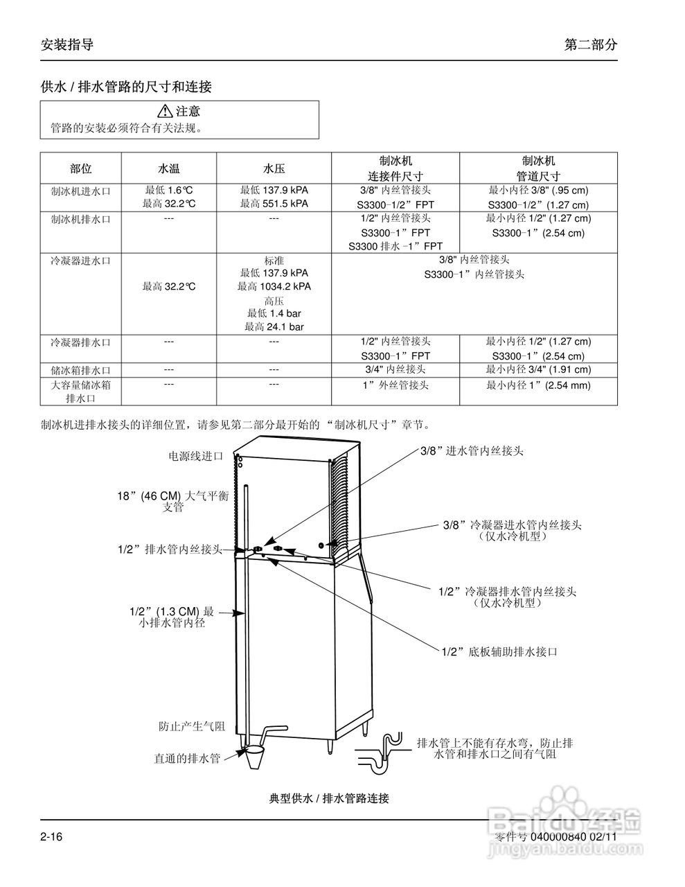
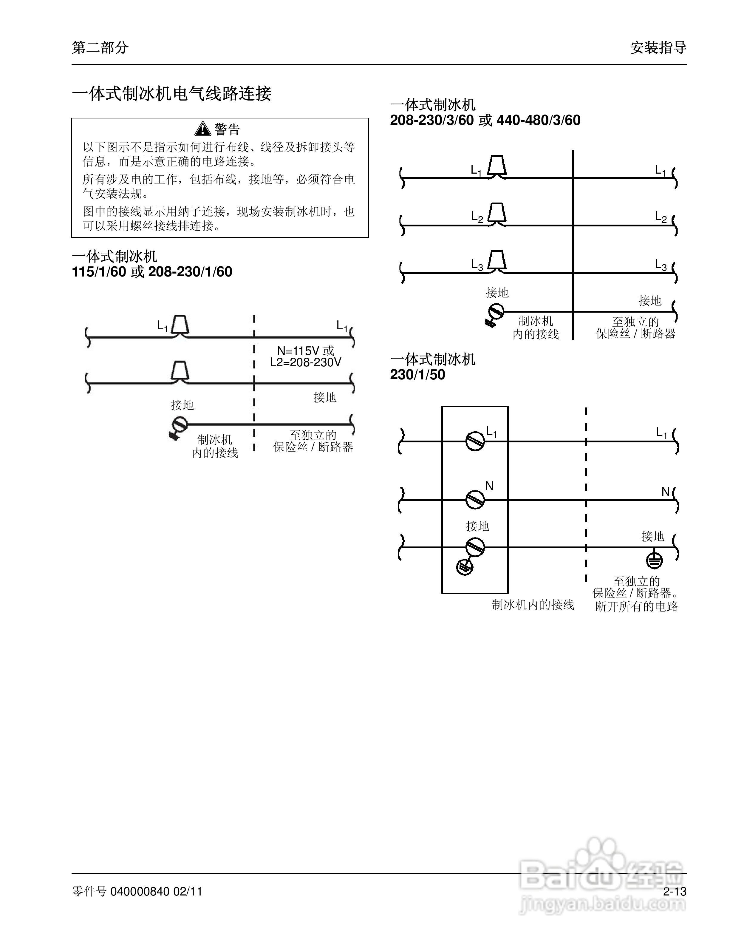
Manitowoc万利多SD3303WHP制冰机说明书:[3]
2026-03-27 19:24:52
/>
(共篇)
上一篇:
|
下一篇:
声明:
本网站引用、摘录或转载内容仅供网站访问者交流或参考,不代表本站立场,如存在版权或非法内容,请联系站长删除,联系邮箱:site.kefu@qq.com。
相关推荐
Manitowoc万利多SD3303W制冰机说明书:[3]
阅读量:123
Manitowoc万利多SD3303WHP制冰机说明书:[5]
阅读量:136
Manitowoc万利多SD3303W制冰机说明书:[5]
阅读量:137
制冰机制冰慢怎么调节
阅读量:193
制冰机不脱冰怎么处理
阅读量:138
猜你喜欢
别具一格什么意思
老同是什么意思
酸枣的功效与作用
注册商标需要什么条件
回族有什么节日
人为什么要吃盐
什么叫系统
香茅草的功效与作用
什么生意好做又赚钱
黑巧克力的功效与作用
猜你喜欢
运动会的加油稿
莫沙必利的作用与功效
桑寄生的功效与作用
奇异果的功效与作用
学校运动会会徽设计
初二英语上册知识点
初中英语知识点大全
运动会感受作文
soga什么意思
炒杏仁的功效与作用