小度生活
首页
美食营养
手工爱好
生活家居
返回
小度生活
首页
美食营养
游戏数码
手工爱好
生活家居
健康养生
运动户外
职场理财
情感交际
母婴教育
时尚美容
知识问答
生活知识
生活百科
搜索
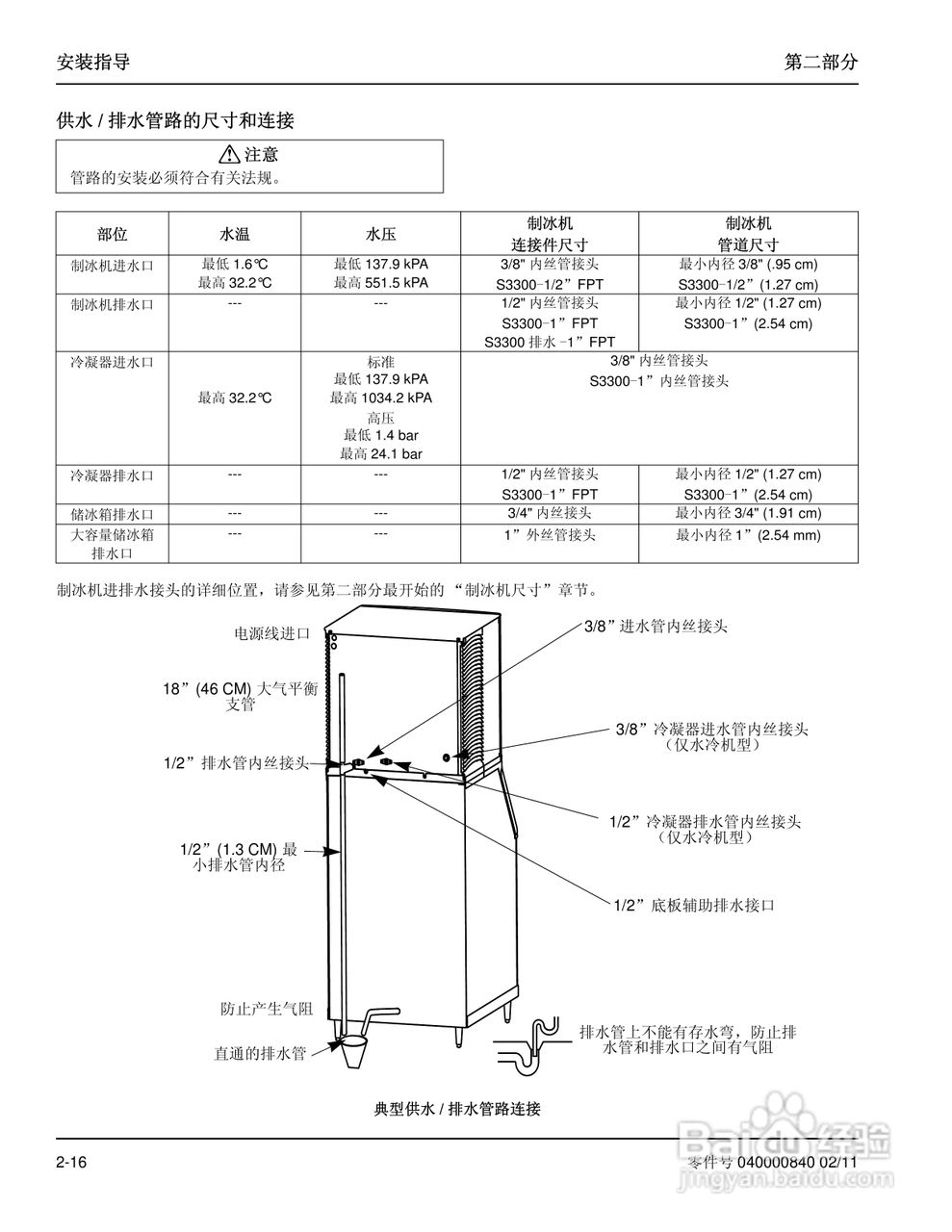
Manitowoc万利多SD3303W制冰机说明书:[3]
2026-03-27 22:53:52
/>
(共篇)
上一篇:
|
下一篇:
声明:
本网站引用、摘录或转载内容仅供网站访问者交流或参考,不代表本站立场,如存在版权或非法内容,请联系站长删除,联系邮箱:site.kefu@qq.com。
相关推荐
Manitowoc万利多SD3303WHP制冰机说明书:[3]
阅读量:137
Manitowoc万利多SD3303W制冰机说明书:[6]
阅读量:128
Manitowoc万利多SD1002A制冰机说明书:[3]
阅读量:169
Manitowoc万利多SD1602A制冰机说明书:[3]
阅读量:135
制冰机制冰慢怎么调节
阅读量:68
猜你喜欢
心情说说感悟生活
sop是什么意思
生活随笔200字
生活大爆炸主题曲
10085是什么电话服务
午夜男女生活片牲交
锦鲤白点病怎么治
书引号怎么打
如何解锁手机密码
如何选购空调
猜你喜欢
如何钓鲢鱼
生活需要微笑议论文
嗜睡是什么原因造成的
如何保持身体健康
安卓手机如何截图
声卡没有声音怎么办
拉直头发后怎么保养
2台电脑怎么共享文件
11月23日是什么星座
小森生活