小度生活
首页
美食营养
手工爱好
生活家居
返回
小度生活
首页
美食营养
游戏数码
手工爱好
生活家居
健康养生
运动户外
职场理财
情感交际
母婴教育
时尚美容
知识问答
生活知识
生活百科
搜索
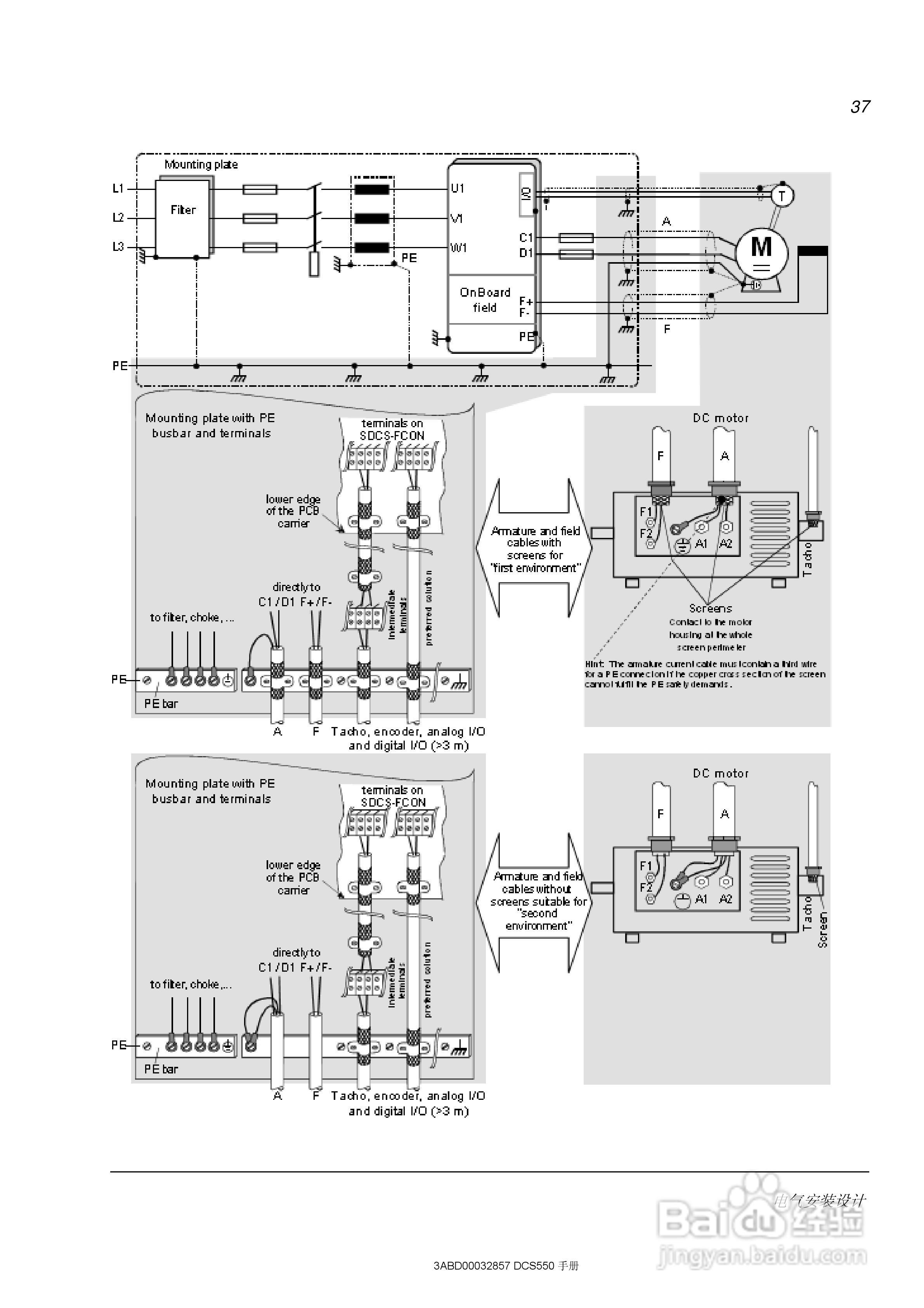
ABB直流调速器DCS550使用手册:[4]
2026-03-25 19:54:21
本篇为《ABB直流调速器DCS550使用手册》,主要介绍该产品的使用方法以及常见故障解决方案。
(共篇)
上一篇:
|
下一篇:
声明:
本网站引用、摘录或转载内容仅供网站访问者交流或参考,不代表本站立场,如存在版权或非法内容,请联系站长删除,联系邮箱:site.kefu@qq.com。
相关推荐
ABB直流调速器DCS550使用手册:[24]
阅读量:165
ABB直流调速器DCS550使用手册:[27]
阅读量:156
ABB直流调速器DCS550使用手册:[32]
阅读量:152
ABB直流调速器DCS550使用手册:[30]
阅读量:107
ABB直流调速器DCS550使用手册:[33]
阅读量:55
猜你喜欢
梦见丢钱是什么意思
李白字什么号什么
备注是什么意思
小马过河告诉我们什么道理
康乃馨送什么人
少将是什么级别的干部
烧碱是什么
民营企业是什么意思
黄体期是什么时候
喝什么醒酒
猜你喜欢
catch是什么意思
荷花什么时候开花
三支一扶考什么
脚后跟疼是什么原因
拉拉是什么意思
教师节送老师什么花
adobe是什么软件
纳米是什么
sounds是什么意思
down是什么意思