小度生活
首页
美食营养
手工爱好
生活家居
返回
小度生活
首页
美食营养
游戏数码
手工爱好
生活家居
健康养生
运动户外
职场理财
情感交际
母婴教育
时尚美容
知识问答
生活知识
生活百科
搜索
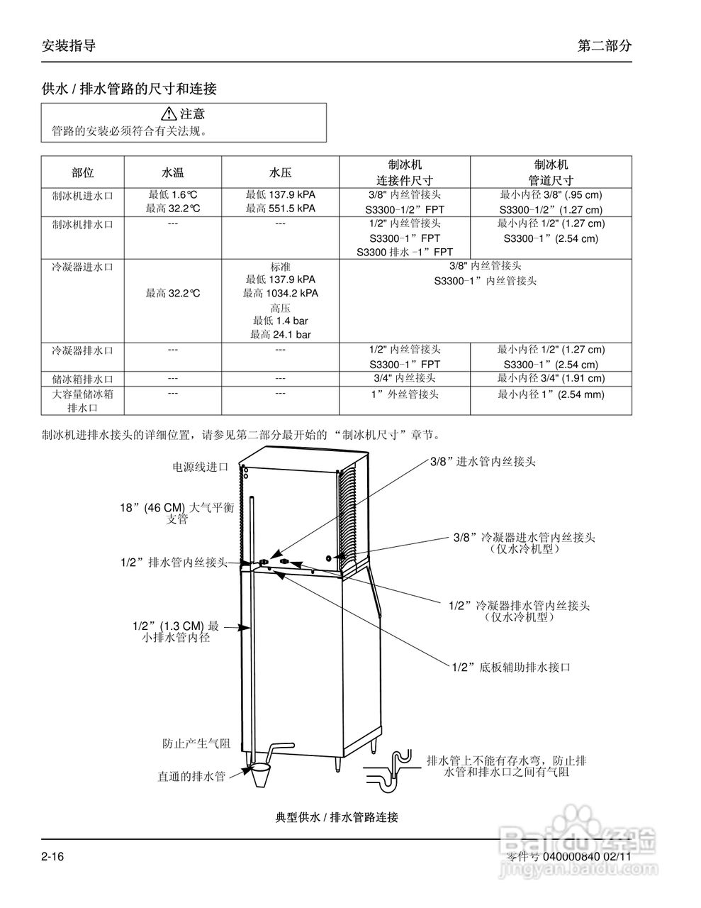
Manitowoc万利多SD3303WM制冰机说明书:[3]
2026-03-28 08:45:42
/>
(共篇)
上一篇:
|
下一篇:
声明:
本网站引用、摘录或转载内容仅供网站访问者交流或参考,不代表本站立场,如存在版权或非法内容,请联系站长删除,联系邮箱:site.kefu@qq.com。
相关推荐
Manitowoc万利多SD3303W制冰机说明书:[3]
阅读量:103
Manitowoc万利多SD3303W制冰机说明书:[5]
阅读量:51
制冰机制冰慢怎么调节
阅读量:168
制冰机不脱冰怎么处理
阅读量:52
Manitowoc万利多SD3303WHP制冰机说明书:[5]
阅读量:146
猜你喜欢
什么是工程管理
初中英语知识点大全
地屈孕酮片的作用
颠茄片的功效与作用
华米运动手表
淫羊藿的功效与作用
腊梅花的功效与作用
消防知识图片
c语言用什么软件
pdf用什么打开
猜你喜欢
中药学综合知识与技能
开心果的功效与作用
武汉疫情什么时候开始的
天麻的作用与功效
辣椒的功效与作用
白地瓜的功效与作用
神什么什么神的成语
北芪的功效与作用
李白属什么生肖
男士皮带什么牌子好