小度生活
首页
美食营养
手工爱好
生活家居
返回
小度生活
首页
美食营养
游戏数码
手工爱好
生活家居
健康养生
运动户外
职场理财
情感交际
母婴教育
时尚美容
知识问答
生活知识
生活百科
搜索
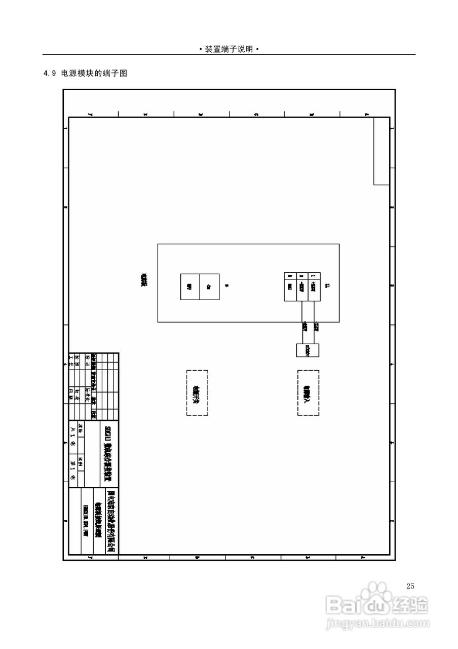
国电南自SDZ210微机综合测控装置技术与使用说明书:[6]
2026-05-10 18:23:51
本篇为《国电南自SDZ210微机综合测控装置技术与使用说明书》,主要介绍该产品的使用方法以及常见故障解决方案。
(共篇)
上一篇:
声明:
本网站引用、摘录或转载内容仅供网站访问者交流或参考,不代表本站立场,如存在版权或非法内容,请联系站长删除,联系邮箱:site.kefu@qq.com。
相关推荐
国电南自SDZ210微机综合测控装置技术与使用说明书:[1]
阅读量:24
微机继电保护测试仪交流试验操作方法
阅读量:88
微机继电保护测试仪软件操作方法
阅读量:144
微机继电保护测试仪常见处理方法
阅读量:86
微机继电保护测试仪差动保护注意事项
阅读量:99
猜你喜欢
直男是什么
县级市和县有什么区别
boring是什么意思
党的基本路线是什么
造影是什么
sad是什么意思
洁癖是什么意思
花园洋房是什么意思
5.20是什么节日
诱惑是什么意思
猜你喜欢
曲马多是什么
赛高什么意思
什么然开朗
等什么君真人照片
sometimes是什么意思
眼睛模糊用什么眼药水
火字旁的有什么字
加速器有什么用
速卖通是什么
following是什么意思