小度生活
首页
美食营养
手工爱好
生活家居
返回
小度生活
首页
美食营养
游戏数码
手工爱好
生活家居
健康养生
运动户外
职场理财
情感交际
母婴教育
时尚美容
知识问答
生活知识
生活百科
搜索
国电南自SDZ210微机综合测控装置技术与使用说明书:[5]
2026-05-10 19:06:57
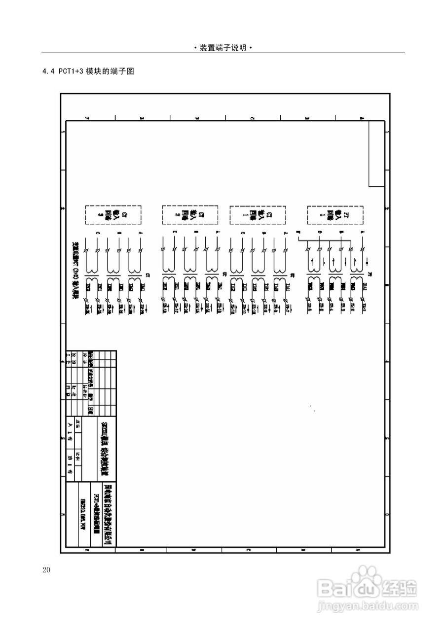
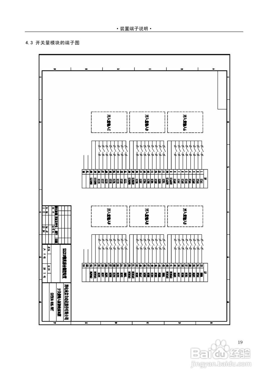
本篇为《国电南自SDZ210微机综合测控装置技术与使用说明书》,主要介绍该产品的使用方法以及常见故障解决方案。
(共篇)
上一篇:
|
下一篇:
声明:
本网站引用、摘录或转载内容仅供网站访问者交流或参考,不代表本站立场,如存在版权或非法内容,请联系站长删除,联系邮箱:site.kefu@qq.com。
相关推荐
国电南自SDZ210微机综合测控装置技术与使用说明书:[2]
阅读量:87
微机继电保护测试仪交流试验操作方法
阅读量:196
微机继电保护测试仪软件操作方法
阅读量:42
微机继电保护测试仪常见处理方法
阅读量:88
微机继电保护测试仪差动保护注意事项
阅读量:110
猜你喜欢
ips是什么意思
人瘦是什么原因
铜钱草的养殖方法和注意事项
灰指甲是什么原因造成的
致跳高运动员
噬菌体是什么
乔丹运动鞋
million是什么意思
公主病是什么意思
苹果11什么时候上市
猜你喜欢
妒忌的近义词是什么
宁静致远什么意思
妖机是什么意思
自贡有什么好玩的地方
芥菜丝的腌制方法大全
官宣的意思是什么
九门提督是什么官
韩国运动品牌
遥不可及是什么意思
闰年是什么意思