小度生活
首页
美食营养
手工爱好
生活家居
返回
小度生活
首页
美食营养
游戏数码
手工爱好
生活家居
健康养生
运动户外
职场理财
情感交际
母婴教育
时尚美容
知识问答
生活知识
生活百科
搜索
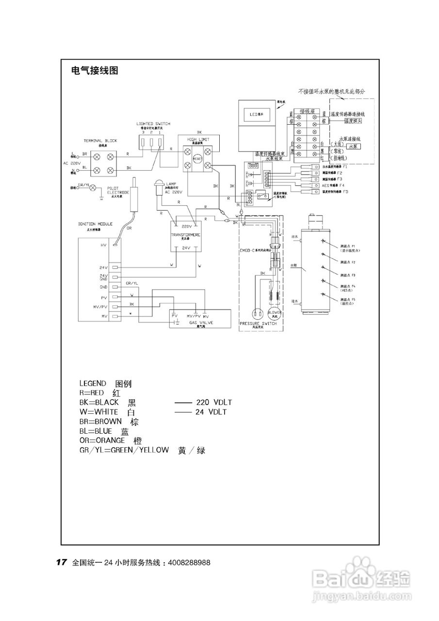
史密斯EMGO-D热水器使用说明书:[2]
2026-05-03 19:41:01
/>
/>
/>
(共篇)
上一篇:
声明:
本网站引用、摘录或转载内容仅供网站访问者交流或参考,不代表本站立场,如存在版权或非法内容,请联系站长删除,联系邮箱:site.kefu@qq.com。
相关推荐
史密斯EWH-D3热水器使用说明书:[2]
阅读量:40
史密斯JSQ26-EX热水器使用说明书:[2]
阅读量:196
史密斯JSQ20-CAX热水器使用说明书:[2]
阅读量:164
史密斯热水器怎么打开 史密斯热水器怎么用
阅读量:107
热水器怎么上水
阅读量:190
猜你喜欢
教师节贺卡怎么做
脸上的斑怎么去掉
调漂方法图解
鹿肉怎么做好吃
山药怎么做好吃又简单
炖鸡汤怎么做好吃
腌咸鸭蛋的方法
产后风湿的治疗方法
韭菜怎么做好吃
孩子流鼻血怎么回事
猜你喜欢
耗电量怎么算
手机大全图片及报价
虾仁的做法大全家常菜
大海的图片大全
鱼胶怎么炖
性的方法
腰上的赘肉怎么减
怎么做视频短片
晒黑后快速美白方法
三角粽子怎么包