小度生活
首页
美食营养
手工爱好
生活家居
返回
小度生活
首页
美食营养
游戏数码
手工爱好
生活家居
健康养生
运动户外
职场理财
情感交际
母婴教育
时尚美容
知识问答
生活知识
搜索
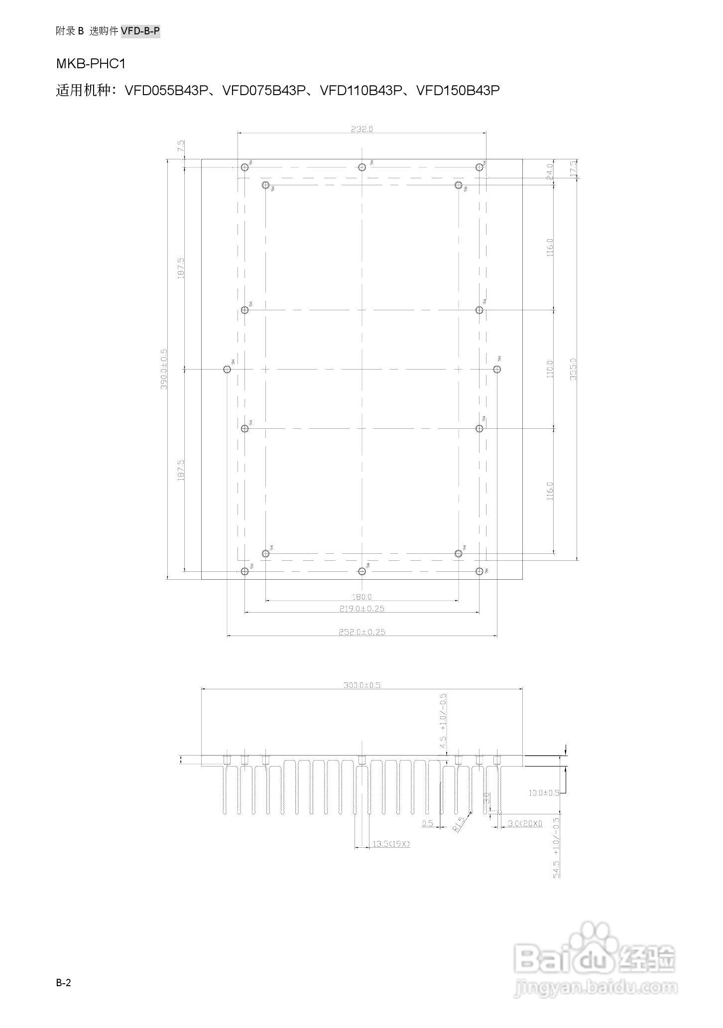
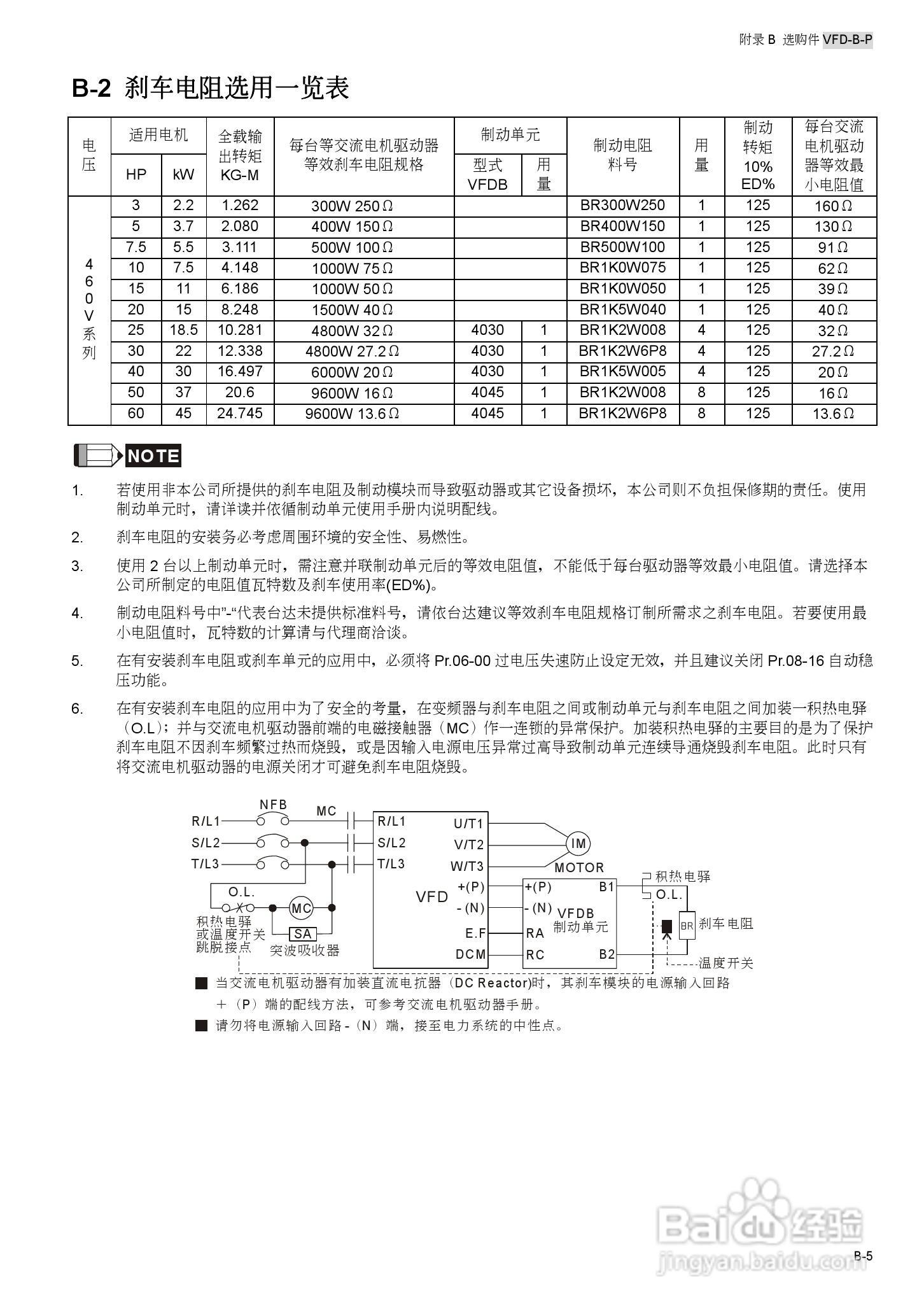
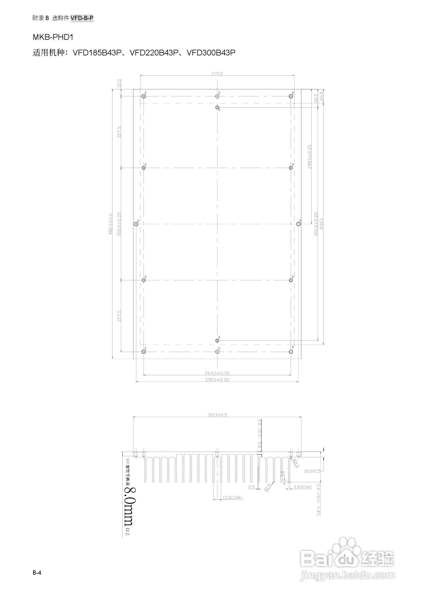
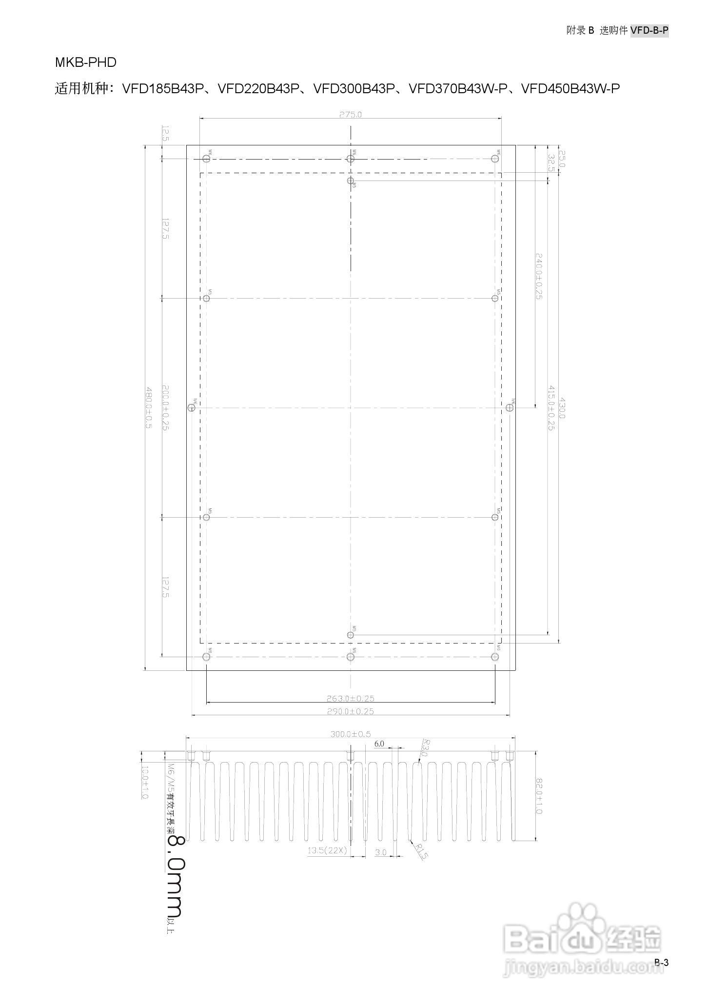
台安VFD450B43W-P变频器使用手册:[17]
2025-10-25 09:33:30
本篇为《台安VFD450B43W-P变频器使用手册》,主要介绍该产品的使用方法以及常见故障解决方案。
(共篇)
上一篇:
|
下一篇:
声明:
本网站引用、摘录或转载内容仅供网站访问者交流或参考,不代表本站立场,如存在版权或非法内容,请联系站长删除,联系邮箱:site.kefu@qq.com。
相关推荐
台安VFD450B43W-P变频器使用手册:[16]
阅读量:46
台安VFD450B43W-P变频器使用手册:[11]
阅读量:130
台安VFD450B43W-P变频器使用手册:[12]
阅读量:41
变频器调试接线教程
阅读量:60
变频器怎么恢复出厂设置
阅读量:123
猜你喜欢
缺铁性贫血怎么办
论文研究方法
幼儿画画图片大全
国产车标大全
crv怎么样
幼儿故事大全
煎鸡翅的家常做法
红烧鸡腿的家常做法
炖鲫鱼的家常做法
伦理片大全
猜你喜欢
轮胎尺寸怎么看
汾酒价格表和图片大全
骨刺的治疗方法
提高性功能的方法
动画片大全
金针菇怎么做好吃
个人档案丢失怎么办
halloween怎么读
奔图打印机怎么样
土豆怎么做好吃