小度生活
首页
美食营养
手工爱好
生活家居
返回
小度生活
首页
美食营养
游戏数码
手工爱好
生活家居
健康养生
运动户外
职场理财
情感交际
母婴教育
时尚美容
知识问答
生活知识
生活百科
搜索
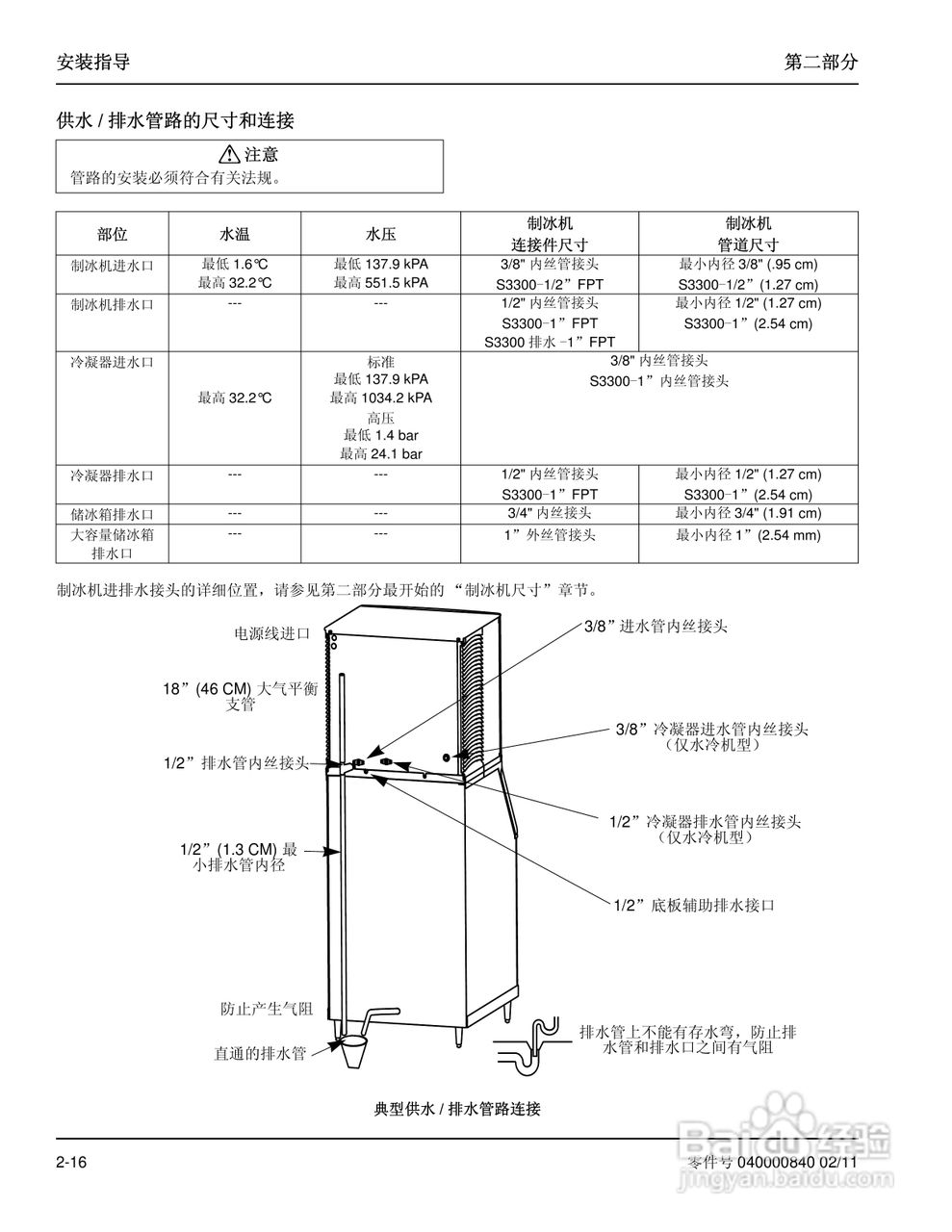
Manitowoc万利多SD0503W制冰机说明书:[3]
2026-03-27 12:40:18
/>
(共篇)
上一篇:
|
下一篇:
声明:
本网站引用、摘录或转载内容仅供网站访问者交流或参考,不代表本站立场,如存在版权或非法内容,请联系站长删除,联系邮箱:site.kefu@qq.com。
相关推荐
Manitowoc万利多SD0503W制冰机说明书:[5]
阅读量:20
Manitowoc万利多SD0503W制冰机说明书:[4]
阅读量:165
Manitowoc万利多SD1692N制冰机说明书:[3]
阅读量:143
Manitowoc万利多SD1002A制冰机说明书:[3]
阅读量:79
Manitowoc万利多SD1802A制冰机说明书:[3]
阅读量:147
猜你喜欢
借调是什么意思
来而不往非礼也什么意思
陌上花开什么意思
手机飞行模式是什么意思
四讲四有是什么
k是什么单位
12月2日是什么星座
95511是什么电话
今年什么时候入伏
地方专项是什么意思
猜你喜欢
过犹不及什么意思
蜻蜓点水是什么意思
摆地摊卖什么最赚钱而且很受欢迎
天牛是什么
桃花什么时候开
月亮像什么
外埠是什么意思
什么是电商
ml什么意思
c2驾照能开什么车