小度生活
首页
美食营养
手工爱好
生活家居
返回
小度生活
首页
美食营养
游戏数码
手工爱好
生活家居
健康养生
运动户外
职场理财
情感交际
母婴教育
时尚美容
知识问答
生活知识
搜索
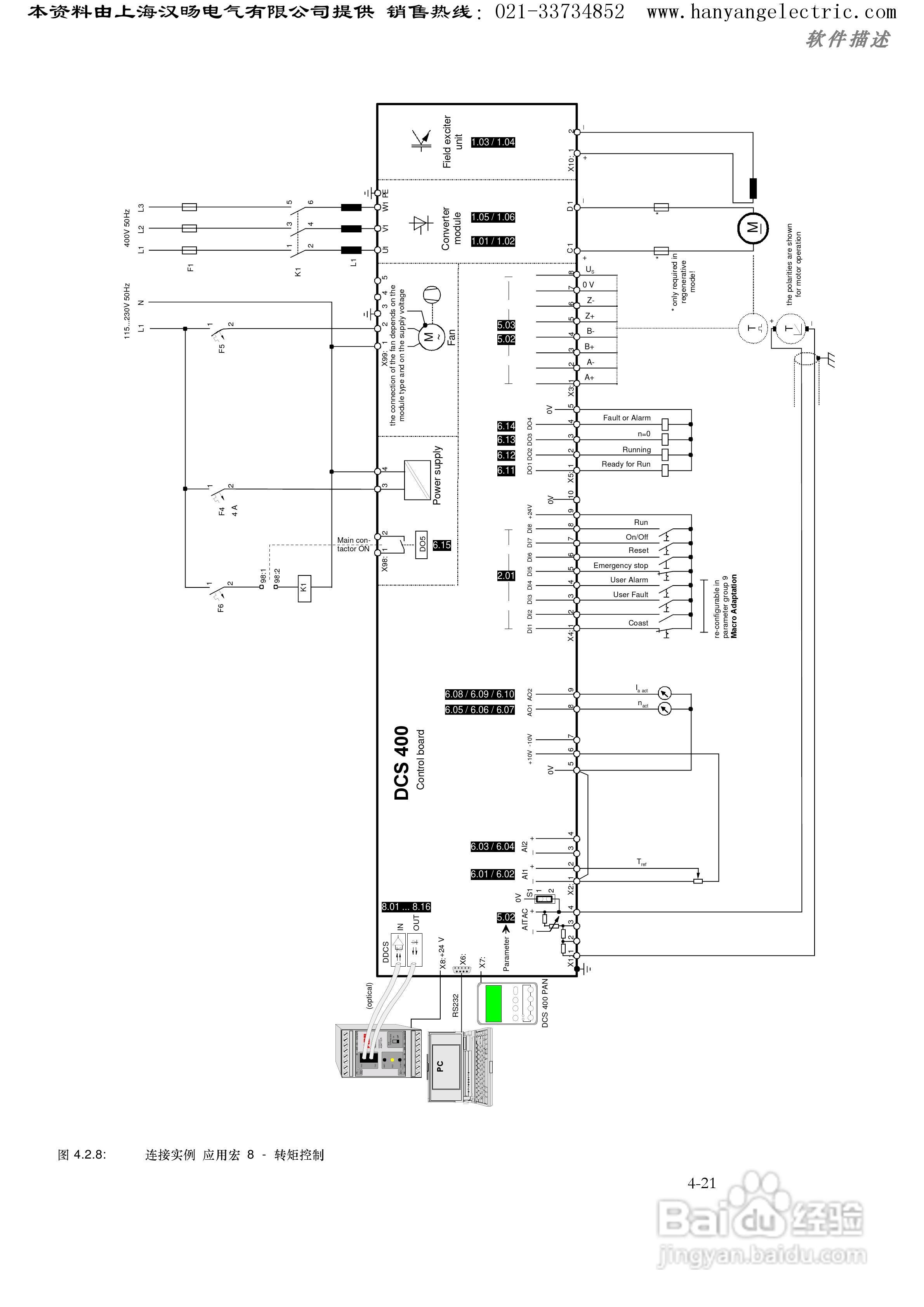
ABB DCS400直流调速器中文使用手册:[5]
2026-01-20 05:38:40
本篇为《ABB DCS400直流调速器中文使用手册》,主要介绍该产品的使用方法以及常见故障解决方案。
(共篇)
上一篇:
|
下一篇:
声明:
本网站引用、摘录或转载内容仅供网站访问者交流或参考,不代表本站立场,如存在版权或非法内容,请联系站长删除,联系邮箱:site.kefu@qq.com。
相关推荐
ABB DCS400直流调速器中文使用手册:[15]
阅读量:192
ABB DCS400直流调速器中文使用手册:[16]
阅读量:38
ABB直流调速器DCS550使用手册:[5]
阅读量:132
ABB DCS400直流调速器中文使用手册:[12]
阅读量:102
ABB DCS400直流调速器中文使用手册:[13]
阅读量:58
猜你喜欢
珀莱雅的护肤品怎么样
可以播放
大连财经学院怎么样
剑灵烛魔武器怎么获得
张家界景区门票
腰椎间盘突出怎么治疗断根
如果可以
我可以爱你吗
仙剑奇侠传二攻略
计算机的特点
猜你喜欢
怎么克隆好友
怎么可以长高
要字怎么读
剑灵怎么双开
梦幻西游剑灵副本攻略
一个手机号可以注册几个微信
凉拌土豆丝的家常做法
电脑一体机怎么样
杭州的旅游景点
助学贷款怎么办理